О квартире
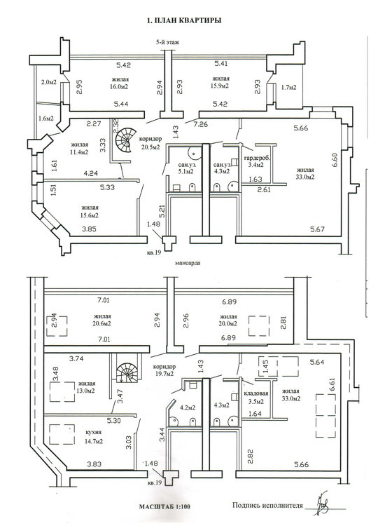
Площадь
258 м2
общая
163 м2
жилая
Отдельных комнат
7 комнат
Санузел
2 сан.узла
Балкон
Лоджия
О доме
Этаж
5 из 6
Материал стен
Кирпичный
Год постройки
2005
Описание
Александр — Собственник
9 часов на сайте
Условия сделки:Чистая продажа
Пожаловаться на объявление
































