Выберите валюту для сайта:
BYN
Подать БЕСПЛАТНО
Объект в архиве
К результатам поиска

Аренда офиса на пр-т Независимости, д. 84/а в Минске, 2570EUR, код 14142

183.6 м2 2 этаж из 3 Первомайский район / Парниковая Парк Челюскинцев
Объект в архиве
Уважаемые пользователи, данное объявление больше не актуально. Поэтому мы убрали все контакты продавца.
Продолжить поиск
Офис
Город Минск
Район Первомайский район
Микрорайон Парниковая
Адрес пр-т Независимости, д. 84/а
Метро Парк Челюскинцев
Время до метро пешком 7 мин.
Время до метро на транспорте 4 мин.
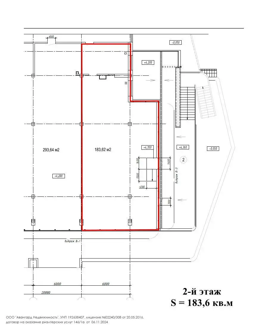
Площадь 183.6 м2
Этаж 2

Описание

Предлагаем Вашему вниманию офисное помещение площадью 183.6 кв.м, расположенное по адресу: г. Минск, пр-т  Независимости, 84А.

 

Арендатор не оплачивает услуги агентства!

  • помещение расположено на 2-м этаже здания;
  • общая площадь - 183,6 кв. м;
  • выполнен качественный ремонт;
  • формат - open space (есть отдельный кабинет);
  • индивидуальные приборы учёта электроэнергии и потребления воды;
  • вывод воды для установки кухни;
  • охраняемый объект;
  • имеется 2 входа (общий и отдельный);
  • доступ в здание 24/7;
  • шаговая доступность от метро и остановок общественного транспорта.

Имеется открытая площадка на 2-м этаже. Возможно использовать под зону отдыха.

Инженерные коммуникации: 

 - приточно-вытяжная вентиляция;

 - сделана разводка для установки кондиционеров;

 - заведено оптоволокно (2 провайдера);

 - пожарная сигнализация;

 - видеонаблюдение.

 

Месторасположение:

В 500 метрах расположена  ст. м. «Парк Челюскинцев». Остановки транспорта в пределах 3-х минут пешком, в шаговой доступности имеется кафе, банки, магазины, парк Челюскинцев.

Звоните!

Код объекта: 14142 Договор с собственником: 146/1а от 2024-11-06 Опубликовано: 12.03.2025 Обновлено: 13.01.2026
Динамика цен за кв. метрДинамика цен
Похожие объекты
Адрес
Комнат
Площадь
Этаж
Цена за м2
Цена
32.3 м2
1 из 3
45 р. за м2
32.3 м2
1 из 3
43 р. за м2
183.62 м2
2 из 3
50 р. за м2
183.6 м2
2 из 3
50 р. за м2
32.3 м2
1 из 3
45 р. за м2

Вы просматривали

3 480 р./мес. 44 р. за м2
Московский р-н
1 920 р./мес. 20 р. за м2
Первомайский р-н
1 381 р./мес. 43 р. за м2
Первомайский р-н
3 187 р./мес. 34 р. за м2
Центральный р-н
+
Фильтр сохранен