Выберите валюту для сайта:
BYN
Подать БЕСПЛАТНО

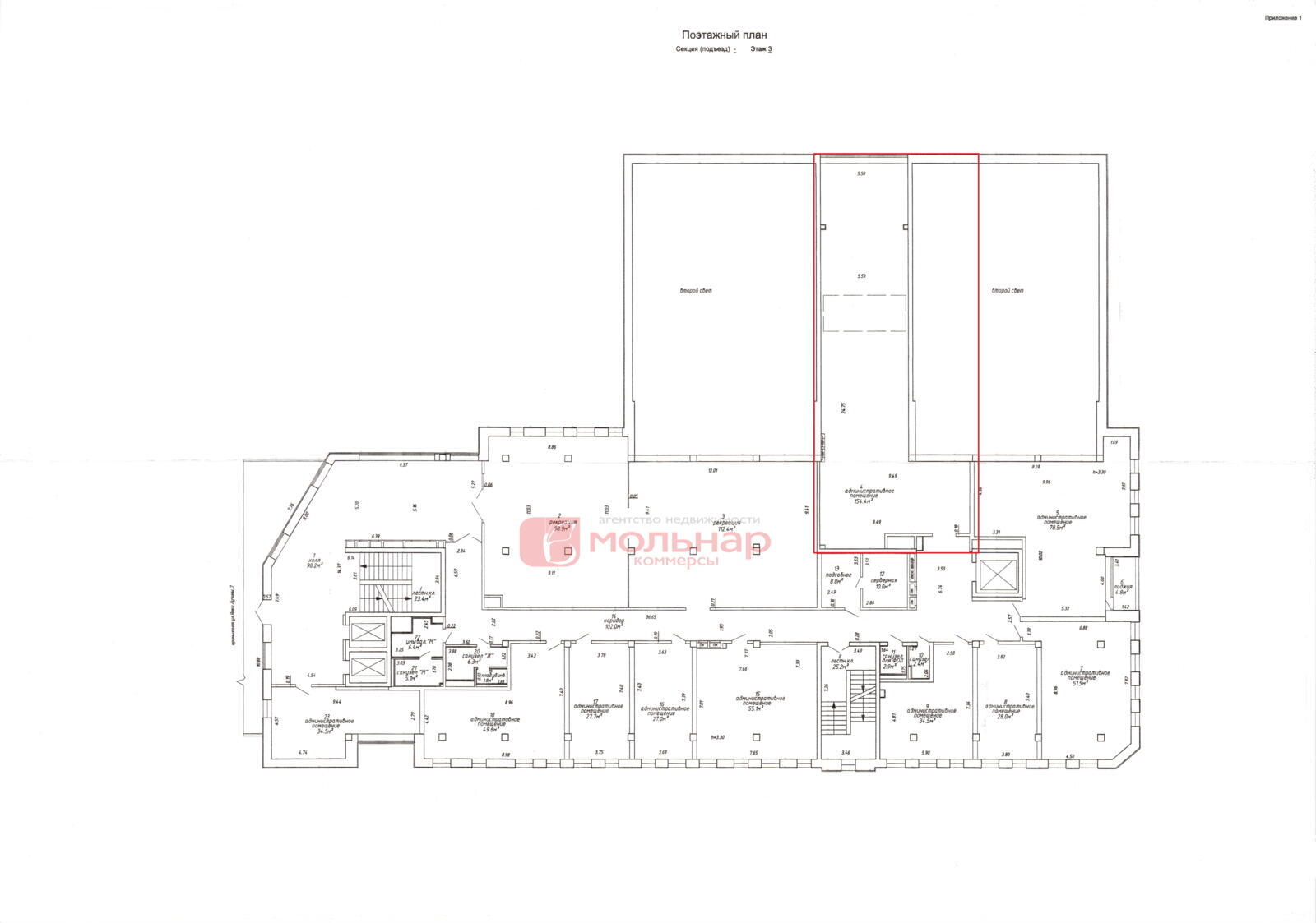
Снять офис на ул. Янки Лучины, д. 5 в Минске, 1235EUR, код 12282

154.4 м2 3 этаж из 3 Ленинский район / Лошица
4 184 р./мес.
Офис
Город Минск
Район Ленинский район
Микрорайон Лошица
Адрес ул. Янки Лучины, д. 5
Площадь 154.4 м2
Помещений 1
Этаж 3

Описание

Аренда офисного помещения общей площадью 154,4м2 в бизнес-центре Стратег по улице Лучины, дом 5. Третий этаж, лифты. Отличный ремонт (подвесной потолок, стены окрашены, плитка), второй свет, кондиционер, вентиляция, сигнализация, видеонаблюдение, компьютерная сеть, скоростной интернет, вывод воды и канализации, санузел на этаже. Охрана. Парковка, подъездные пути. Недалеко от МКАД. Развитая инфраструктура с объектами торговли и общепита. Рядом два гипермаркета Евроопт и Гиппо. Транспортная доступность. Арендная ставка 8 евро\м2, с НДС.

Арендатор не оплачивает услуги риэлтерской организации.

УП "Мольнар", УНП 101107535, лицензия №02240/11 от 17.02.2005г.,

договор на оказание риэлтерских услуг №532/1А

Код объекта: 12282 Договор с собственником: 532/1А Опубликовано: 13.06.2024 Обновлено: 13.06.2024
Динамика цен за кв. метрДинамика цен
Похожие объекты
Адрес
Комнат
Площадь
Этаж
Цена за м2
Цена
1-комнатная
430 м2
2 из 2
27 р. за м2
51.5 м2
4 из 6
26 р. за м2
98.9 м2
3 из 6
26 р. за м2
78.5 м2
3 из 6
26 р. за м2
1-комнатная
446.5 м2
4 из 5
24 р. за м2

Вы просматривали

5 589 р./мес. 24 р. за м2
Заводской р-н
4 184 р./мес. 27 р. за м2
Ленинский р-н
Офис, 154.4 м2
Минск, ул. Янки Лучины, д. 5
4 184 р./мес.
27 р. за м2
Александра
Пожалуйста, скажите, что нашли этот объект на Domovita.by
+
Фильтр сохранен