Выберите валюту для сайта:
BYN
Подать БЕСПЛАТНО

Аренда офиса на ул. Аранская, д. 8 в Минске, 4200EUR, код 14601

350 м2 3 этаж из 8 Ленинский район / Маяковского Первомайская
14 228 р./мес.
Офис
Город Минск
Район Ленинский район
Микрорайон Маяковского
Адрес ул. Аранская, д. 8
Метро Первомайская
Время до метро пешком 13 мин.
Время до метро на транспорте 7 мин.
Год постройки 2019 г.
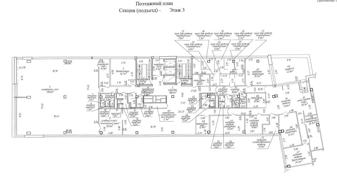
Площадь 350 м2
Этаж 3

Описание

Предлагается в аренду офисное помещение в новом современном бизнес-центре Caspian Plaza по адресу г. Минск ул. Аранская, 8. Несколько открытых стоянок, въезд на которые осуществляется через шлагбаумы.

 

Помещения находятся на 3 этаже, общая площадь 350 м2, нарезка в среднем по 60, 80 и 150 м2. В процессе ремонта все можно демонтировать и смонтировать заново под нужды арендатора. 

Все перегородки из гипсокартона. 

  • высокие потолки
  • система естественной и искусственной вентиляции
  • естественное освещение
  • оптоволокно
  • отдельный лифт для спуска в подземный паркинг
  • несколько санузлов мужской и женский
  • шикарный вид из панорамных окон на реку Свислочь
     

Расположен в центральной части города, в рекреационно-парковой зоне на набережной р. Свислочь, рядом со станцией метро Пролетарская.

 

Арендатор не оплачивает услуги агентства.

Код объекта: 14601 Договор с собственником: 53/2а от 2024-02-20 Опубликовано: 30.04.2025 Обновлено: 04.12.2025
Динамика цен за кв. метрДинамика цен
Похожие объекты
Адрес
Комнат
Площадь
Этаж
Цена за м2
Цена
1118.38 м2
2 из 6
29 р. за м2
877.1 м2
6 из 7
47 р. за м2
886.4 м2
6 из 8
47 р. за м2
500 м2
1 из 8
41 р. за м2
890 м2
6 из 8
47 р. за м2

Вы просматривали

14 228 р./мес. 41 р. за м2
Ленинский р-н
2 954 р./мес. 41 р. за м2
Партизанский р-н
5 664 р./мес. 24 р. за м2
Московский р-н
3 500 р./мес. 52 р. за м2
Советский р-н
20 000 р./мес. 24 р. за м2
Первомайский р-н
3 157 р./мес. 27 р. за м2
Фрунзенский р-н
1 809 р./мес. 41 р. за м2
Первомайский р-н
7 615 р./мес. 32 р. за м2
Советский р-н
6 720 р./мес. 21 р. за м2
Московский р-н
Офис, 350 м2
Минск, ул. Аранская, д. 8
14 228 р./мес.
41 р. за м2
Елена
Пожалуйста, скажите, что нашли этот объект на Domovita.by
+
Фильтр сохранен