Выберите валюту для сайта:
BYN
Подать БЕСПЛАТНО

Аренда офиса на ул. Бирюзова, д. 10/А в Минске, 2959EUR, код 16151

422.8 м2 3 этаж из 7 Фрунзенский район / Ольшевского Молодежная
10 006 р./мес.
Офис
Город Минск
Район Фрунзенский район
Микрорайон Ольшевского
Адрес ул. Бирюзова, д. 10/А
Метро Молодежная
Время до метро пешком 12 мин.
Время до метро на транспорте 7 мин.
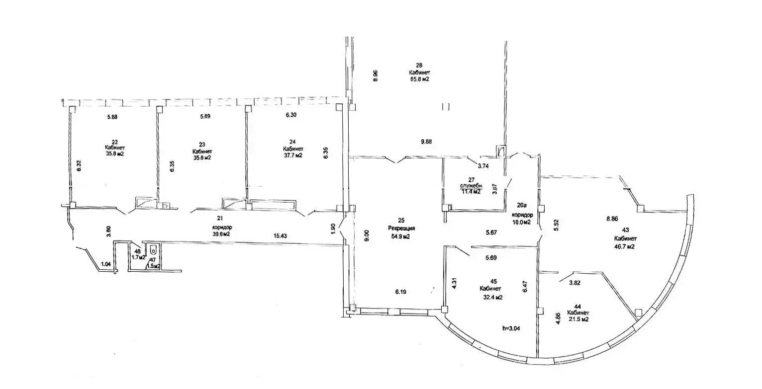
Площадь 422.8 м2
Этаж 3

Описание

Предлагаем аренду офис а на третьем этаже в БЦ Green Plaza площадью 422,8 м2.

  • До станции метро Молодёжная – 1 км (12минут пешком).
  • Просторный светлый офис кабинетного типа с хорошим ремонтом.
  • Возле здания находится большое количество парковочных мест.
  • Режим работы объекта 24/7.

Коммуникации-интернет, кондиционер, сан/узлы,отопление.

Удобное место размещения для вашего бизнеса.

Лицензия: 02240/446 МЮ РБ, 11.07.2022

Код объекта: 16151 Договор с собственником: 66/1А от 2025-12-01 Опубликовано: 02.12.2025 Обновлено: 02.12.2025
Динамика цен за кв. метрДинамика цен
Похожие объекты
Адрес
Комнат
Площадь
Этаж
Цена за м2
Цена
425 м2
3 из 3
20 р. за м2
422.8 м2
3 из 7
20 р. за м2
425 м2
3 из 3
20 р. за м2
422.8 м2
3 из 7
25 р. за м2
288 м2
1 из 7
37 р. за м2

Вы просматривали

10 006 р./мес. 24 р. за м2
Фрунзенский р-н
1 176 р./мес. 53 р. за м2
Советский р-н
22 125 р./мес. 41 р. за м2
Московский р-н
Офис, 422.8 м2
Минск, ул. Бирюзова, д. 10/А
10 006 р./мес.
24 р. за м2
Дмитрий
Пожалуйста, скажите, что нашли этот объект на Domovita.by
+
Фильтр сохранен