Выберите валюту для сайта:
BYN
Подать БЕСПЛАТНО

Аренда офиса на ул. Филимонова, д. 55 к 3 в Минске, 939EUR, код 15659

156.4 м2 1 этаж из 9 Первомайский район / Парниковая Московская
4 320 р./мес.
3 221 р./мес.
Офис
Город Минск
Район Первомайский район
Микрорайон Парниковая
Адрес ул. Филимонова, д. 55 к 3
Метро Московская
Время до метро пешком 11 мин.
Время до метро на транспорте 6 мин.
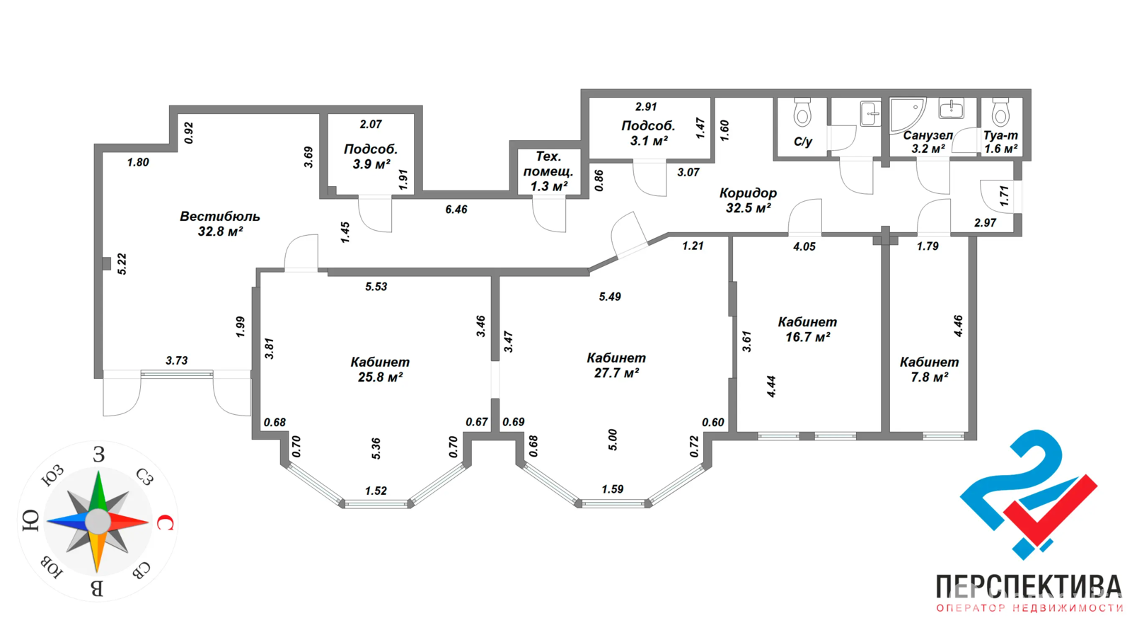
Площадь 156.4 м2
Помещений 4
Этаж 1
Удобства
Телефон
Круглосуточный доступ
Отдельный вход
Кондиционер

Описание

Сдаётся комфортабельный офис в хорошей локации!

Ищете идеальное место для вашего бизнеса?

У нас есть то, что вам нужно!

Основные преимущества:

- Удобное расположение: Офис находится в непосредственной близости от станций метро «Московская» и «Восток», а также прямо у офиса находится остановка общественного транспорта.

- Простор и комфорт: Общая площадь – 156.4 м2 с высокими потолками (2.99 м), что создаёт ощущение свободы и простора.

- Безопасность: Офис под сигнализацией, что гарантирует защиту вашего имущества.

- Удобства: Приточно-вытяжная вентиляция, ролеты на дверях и окнах, 2 санузла для вашего комфорта и просторный вестибюль для гостей.

- Гибкость в планировке: 3 отдельных кабинета с возможностью преобразования в 4, а также подсобные и технические помещения для хранения.

Помещение можно арендовать покабинетно либо целиком.

Не упустите шанс арендовать офис, который станет идеальной базой для вашего бизнеса!

Звоните прямо сейчас, чтобы записаться на просмотр!

Бесплатные консультации по вопросам недвижимости!

ООО "Оператор недвижимости "Перспектива24-Развитие", УНП 191441618, лицензия на оказание юридических (риэлтерских) услуг №02240/225, договор на оказание риэлтерских услуг №3/7а от 25.09.2025 года.

Код объекта: 15659 Договор с собственником: №3/7а от 25.09.2025 Опубликовано: 29.09.2025 Обновлено: 09.11.2025
Динамика цен за кв. метрДинамика цен
Похожие объекты
Адрес
Комнат
Площадь
Этаж
Цена за м2
Цена
1-комнатная
49 м2
1 из 1
24 р. за м2
1-комнатная
51.3 м2
3 из 3
21 р. за м2
1-комнатная
32.9 м2
3 из 3
24 р. за м2
1-комнатная
39 м2
3 из 3
27 р. за м2
1-комнатная
49 м2
3 из 3
28 р. за м2

Вы просматривали

3 221 р./мес. 21 р. за м2
Первомайский р-н
Офис, 156.4 м2
Минск, ул. Филимонова, д. 55 к 3
3 221 р./мес.
21 р. за м2
Борис Карпухин
Пожалуйста, скажите, что нашли этот объект на Domovita.by
+
Фильтр сохранен