Выберите валюту для сайта:
BYN
Подать БЕСПЛАТНО
Объект в архиве
К результатам поиска

Снять офис на ул. Красная, д. 7/25 в Минске, 7101BYN, код 15613

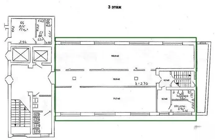
236.7 м2 3 этаж из 4 Центральный район / Киселева Площадь Победы
Объект в архиве
Уважаемые пользователи, данное объявление больше не актуально. Поэтому мы убрали все контакты продавца.
Продолжить поиск
Офис
Город Минск
Район Центральный район
Микрорайон Киселева
Адрес ул. Красная, д. 7/25
Метро Площадь Победы
Время до метро пешком 8 мин.
Время до метро на транспорте 5 мин.
Площадь 236.7 м2
Этаж 3

Описание

Аренда помещение под офис на ул. Куйбышева, 22 
- Вход через холл
- В здании есть охранник
- Есть пассажирский лифт
- На этаже есть санузел

Рядом две станции метро — Площадь Победы (7 минут пешком) и Якуба Коласа (10 минут пешком). Рядом магазины, кафе, офисы и остановки общественного транспорта.
- Коммунальные услуги — по счётчикам
- Дополнительно — эксплуатационные расходы.

Код объекта: 15613 Договор с собственником: 11/1а от 2025-03-25 Опубликовано: 23.09.2025 Обновлено: 25.12.2025
Динамика цен за кв. метрДинамика цен
Похожие объекты
Адрес
Комнат
Площадь
Этаж
Цена за м2
Цена
1836.5 м2
3 из 4
29 р. за м2
+
Фильтр сохранен