Выберите валюту для сайта:
BYN
Подать БЕСПЛАТНО

Аренда офиса на ул. Кульман, д. 11 в Минске, 20271BYN, код 15926

699.3 м2 4 этаж из 7 Советский район / Куйбышева Площадь Якуба Коласа
20 271 р./мес.
Офис
Город Минск
Район Советский район
Микрорайон Куйбышева
Адрес ул. Кульман, д. 11
Метро Площадь Якуба Коласа
Время до метро пешком 11 мин.
Время до метро на транспорте 6 мин.
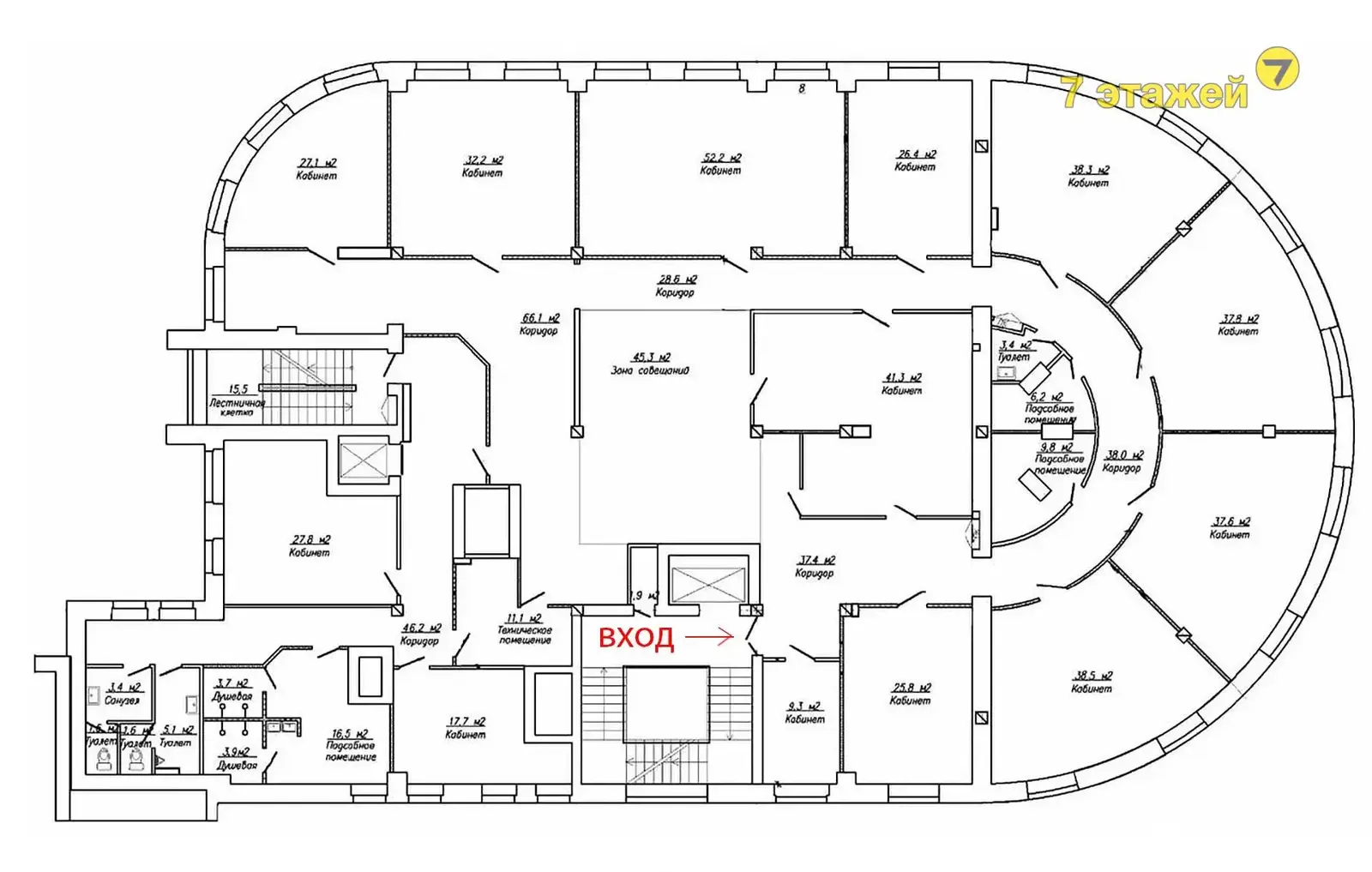
Площадь 699.3 м2
Этаж 4

Описание

Сдается офисное помещение 699,3 кв.м. Помещение: Площадь 699,3 кв.м Кабинетная нарезка 2 сан. узла, душевая Переговорки Кухня, зона приема пищи Приточно-вытяжная вентиляция Пожарно-охранная сигнализация БЦ "Манеж": Доступ 24/7 Собственные парковки под шлагбаумом Возможность организация уборки и обслуживания помещений Локация: ст. м. Площадь Якуба Коласа - 7 минут пешком Ближайшие остановки - Кульман (10м), Комаровский рынок (330м) Несколько точек общественного питания Звоните, организуем показ в удобное для вас время!
Код объекта: 15926 Договор с собственником: 42/3а от 24.10.2025 Опубликовано: 29.10.2025 Обновлено: 02.12.2025
Динамика цен за кв. метрДинамика цен
Похожие объекты
Адрес
Комнат
Площадь
Этаж
Цена за м2
Цена
18-комнатная
673.7 м2
3 из 7
34 р. за м2
200 м2
3 из 7
30 р. за м2
369.4 м2
3 из 7
30 р. за м2
53 м2
5 из 6
40 р. за м2

Вы просматривали

1 616 р./мес. 41 р. за м2
Центральный р-н
5 113 р./мес. 24 р. за м2
Центральный р-н
20 271 р./мес. 29 р. за м2
Советский р-н
5 275 р./мес. 27 р. за м2
Советский р-н
521 р./мес. 34 р. за м2
Советский р-н
1 231 р./мес. 34 р. за м2
Советский р-н
768 р./мес. 20 р. за м2
Фрунзенский р-н
24 830 р./мес. 34 р. за м2
Центральный р-н
Офис, 699.3 м2
Минск, ул. Кульман, д. 11
20 271 р./мес.
29 р. за м2
Агент
Пожалуйста, скажите, что нашли этот объект на Domovita.by
+
Фильтр сохранен