Выберите валюту для сайта:
BYN
Подать БЕСПЛАТНО

Снять офис на ул. Волгоградская, д. 6/а в Минске, 6921EUR, код 13760

576.8 м2 3 этаж из 4 Первомайский район / Волгоградская Московская
23 445 р./мес.
Офис
Город Минск
Район Первомайский район
Микрорайон Волгоградская
Адрес ул. Волгоградская, д. 6/а
Метро Московская
Время до метро пешком 5 мин.
Время до метро на транспорте 3 мин.
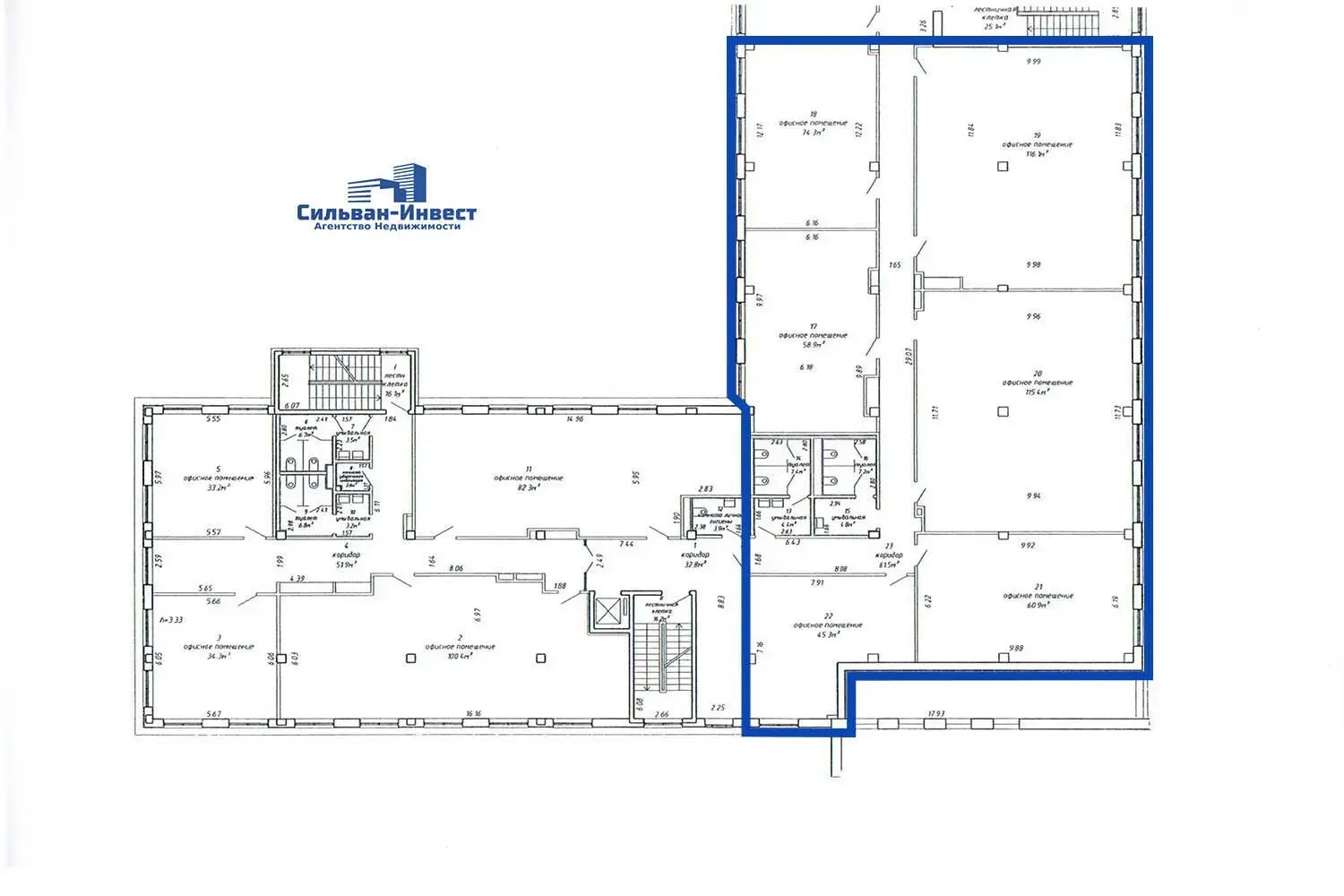
Площадь 576.8 м2
Этаж 3

Описание

Аренда административных помещений в удобной локации
Адрес: г. Минск, ул. Волгоградская, 6А
Площадь общая: 576,8 м2
Стоимость аренды: 12 €/м2, НДС 0%

Административные помещения расположены на 3 этаже четырехэтажного блочного административно- хозяйственного здания 2015 года реконструкции.

Характеристики:
- Офисы расположены на 3 этаже
- Статусная локация
- Кабинетная система
- Близость к метро Московская и центру города
- Хороший ремонт
- Высокая инсоляция
- Обеденная зона, кухня
- Санузлы
- Приточно-вытяжная вентиляция
- Освещение, отопление, оптоволокно
- Наземная парковка
- В соседних зданиях расположены отделение банка, медицинские центры, магазины, кафе, аптека, развитая инфраструктура
Удобные подъездные пути – рядом расположены остановки общественного транспорта.

Арендатор не оплачивает услуги риэлтерской организации!

Ваш агент – Андрей Смолка

Больше предложений на САЙТЕ Silvan7800.by

Договор № 146/3а от 13.12.2024 по 12.12.2026
ООО «Сильван-Инвест», УНП 192927433, лицензия №02240/383, Министерство юстиции РБ, 24.09.2019.

Код объекта: 13760 Договор с собственником: 146/3а от 2024-12-13 Опубликовано: 06.02.2025 Обновлено: 07.11.2025
Динамика цен за кв. метрДинамика цен
Похожие объекты
Адрес
Комнат
Площадь
Этаж
Цена за м2
Цена
127.7 м2
1 из 4
41 р. за м2
354.6 м2
4 из 4
34 р. за м2
917.2 м2
3 из 4
41 р. за м2
340.4 м2
3 из 4
41 р. за м2
917.2 м2
3 из 4
37 р. за м2

Вы просматривали

23 445 р./мес. 41 р. за м2
Первомайский р-н
Офис, 576.8 м2
Минск, ул. Волгоградская, д. 6/а
23 445 р./мес.
41 р. за м2
Смолка Андрей
Пожалуйста, скажите, что нашли этот объект на Domovita.by
+
Фильтр сохранен