Выберите валюту для сайта:
BYN
Подать БЕСПЛАТНО

Купить офис на ул. Клары Цеткин, д. 24 в Минске, 914400EUR, код 9075

457.2 м2 3 этаж из 16 Московский район / Короля Фрунзенская
3 111 612 р.
Офис
Город Минск
Район Московский район
Микрорайон Короля
Адрес ул. Клары Цеткин, д. 24
Метро Фрунзенская
Время до метро пешком 7 мин.
Время до метро на транспорте 4 мин.
Площадь 457.2 м2
Этаж 3

Описание

Продажа административного помещения в современном МФК «Имперский»

Идеальное решение для вашего бизнеса!

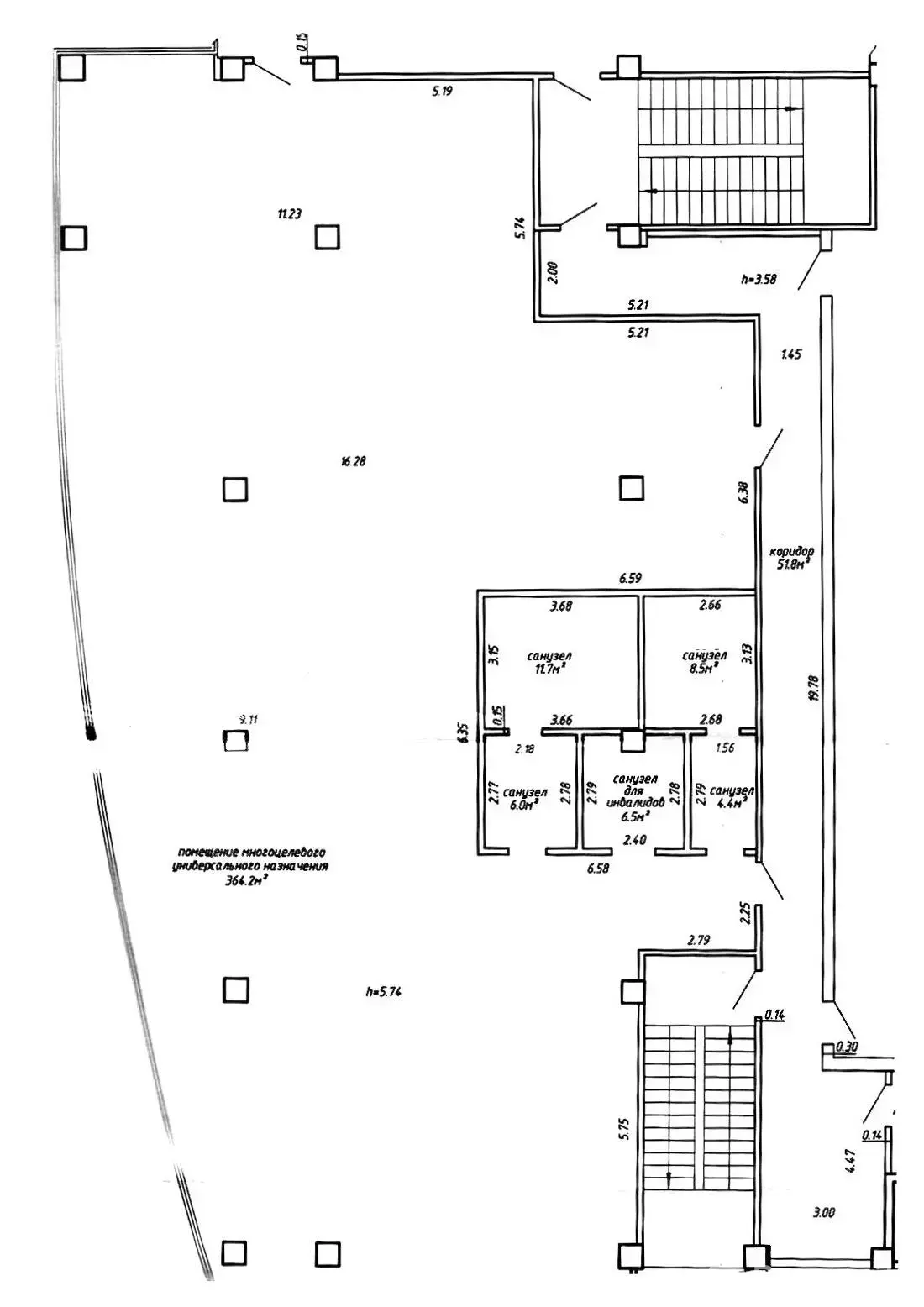
Предлагаем к продаже административное помещение общей площадью 457,2 кв.м. в современном многофункциональном комплексе «Имперский», расположенном по адресу: ул. К. Цеткин, 24. Это помещение станет отличным решением для различных видов бизнеса, включая сферу услуг, престижные офисы, представительства компаний, коворкинги и многое другое.

Основные характеристики:

Местоположение:

  • Многофункциональный комплекс «Имперский»
  • Ул. К. Цеткин, 24
  • Центральная часть города с отличной транспортной развязкой
  • Престижный адрес для вашего бизнеса

Помещение:

  • Общая площадь: 457,2 кв.м.
  • Расположено на 3-м этаже в центральной 3-х этажной части МФК «Имперский»
  • Отдельный вход в здание
  • Без отделки, что позволяет создать интерьер по вашему вкусу
  • Свободная планировка – openspace
  • Отдельный санузел
  • Высота потолка: 4 м
  • Остекление в пол, обеспечивающее естественное освещение и прекрасный вид

Коммуникации и инфраструктура:

  • Отопление
  • Электричество
  • Вода и канализация
  • Оптоволокно для высокоскоростного интернета
  • Проекты на кондиционирование и вентиляцию, кондиционеры в наличии
  • Собственная вентиляционная установка на крыше
  • Доступ 24/7, что позволяет работать в любое удобное время

Парковка:

  • Наземная парковка
  • Подземный паркинг

 

Преимущества здания:

  • Многофункциональный комплекс «Имперский» оснащен современными коммуникациями
  • Высокий уровень безопасности, контроль доступа в здание
  • Фасад здания сохраняет тепло зимой и блокирует УФ-излучение летом
  • Лифты фирмы Отис
  • Презентабельный холл
  • Из окон открывается прекрасный вид
  • Здание обслуживается товариществом собственников, что обеспечивает высокий уровень обслуживания и поддержки

Условия продажи:

  • Гибкие условия сделки
  • Возможность оформления в короткие сроки

Лицензия: 02240/446 МЮ РБ, 11.07.2022

Код объекта: 9075 Договор с собственником: 603/1 от 2025-08-15 Опубликовано: 18.08.2025 Обновлено: 08.02.2026
Динамика цен за кв. метрДинамика цен
Похожие объекты
Адрес
Комнат
Площадь
Этаж
Цена за м2
Цена
453.1 м2
3 из 3
6 445 р. за м2
581 м2
3 из 3
6 445 р. за м2
123.8 м2
3 из 16
6 806 р. за м2
581 м2
3 из 16
6 806 р. за м2
457.2 м2
3 из 15
5 729 р. за м2

Вы просматривали

1 587 450 р. 2 864 р. за м2
Октябрьский р-н
3 111 612 р. 6 806 р. за м2
Московский р-н
600 564 р. 2 721 р. за м2
Центральный р-н
122 969 р. 2 578 р. за м2
Центральный р-н
200 866 р. 2 693 р. за м2
Центральный р-н
1 270 934 р. 4 297 р. за м2
Московский р-н
Офис, 457.2 м2
Минск, ул. Клары Цеткин, д. 24
3 111 612 р.
6 806 р. за м2
Фаттория
Пожалуйста, скажите, что нашли этот объект на Domovita.by
+
Фильтр сохранен