Выберите валюту для сайта:
BYN
Подать БЕСПЛАТНО
Объект в архиве
К результатам поиска

Помещение под сферу услуг в Минске, пр-т Независимости, д. 168/2, код 3501

85.4 м2 1 этаж из 12 Первомайский район / Уручье Уручье
Объект в архиве
Уважаемые пользователи, данное объявление больше не актуально. Поэтому мы убрали все контакты продавца.
Продолжить поиск
Сервис
Город Минск
Район Первомайский район
Микрорайон Уручье
Адрес пр-т Независимости, д. 168/2
Метро Уручье
Время до метро пешком 4 мин.
Время до метро на транспорте 2 мин.
Год постройки 2007 г.
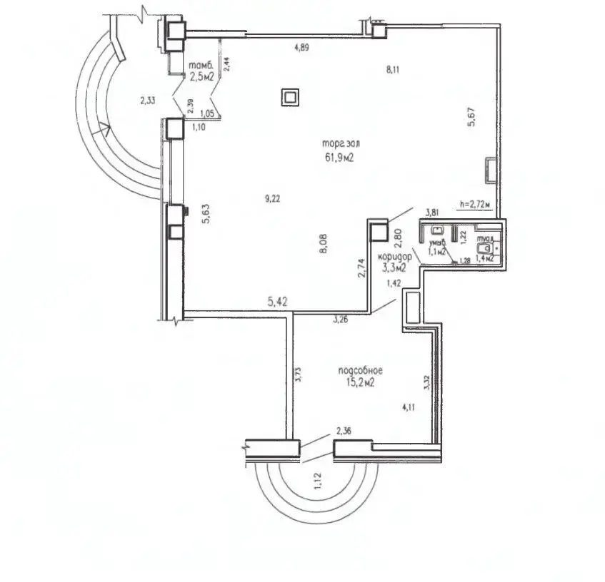
Площадь 85.4 м2
Этаж 1

Описание

Помещение с двумя отдельными входами находится на первом этаже жилого дома, расположенного всего в 1 мин. от ст.м.Уручье и подойдет для размещения магазина, кафе, банковского отделения, салона красоты и других сфер бизнеса.

 

Расположение в районе с плотной жилой застройкой, высоким пешеходным и автомобильным трафиком обеспечивает постоянный поток посетителей.

 

В помещении проведены коммуникации: электроэнергия, водоснабжение, отопление, санузел, кондиционер. Возможная нагрузка на электрическую сеть до 50 кВт.

 

При необходимости можно оставить оборудование (холодильники, видеонаблюдение, торговые стеллажи, морозильная камера) за дополнительную плату.

 

Если вас заинтересовало предложение, позвоните нам и мы ответим на все ваши вопросы!

 

Арендатор не оплачивает услуги риэлтерской организации!

Код объекта: 3501 Договор с собственником: 81/3а от 2025-10-20 Опубликовано: 24.10.2025 Обновлено: 19.01.2026
0 / 0 / 10
Динамика цен за кв. метрДинамика цен
Похожие объекты
Адрес
Комнат
Площадь
Этаж
Цена за м2
Цена
365.5 м2
1 из 4
84 р. за м2
447.3 м2
2 из 8
32 р. за м2
183.6 м2
2 из 3
50 р. за м2
32.3 м2
1 из 3
45 р. за м2
575 м2
1 из 2
40 р. за м2
+
Фильтр сохранен