Выберите валюту для сайта:
BYN
Подать БЕСПЛАТНО

Объект сферы услуг в Минске, пр-т Рокоссовского, д. 1, код 2704

472 м2 1 этаж из 2 Ленинский район / Серебрянка Пролетарская
31 920 р./мес.
Сервис
Город Минск
Район Ленинский район
Микрорайон Серебрянка
Адрес пр-т Рокоссовского, д. 1
Метро Пролетарская
Время до метро пешком 24 мин.
Время до метро на транспорте 13 мин.
Год постройки 1984 г.
Площадь 472 м2
Этаж 1

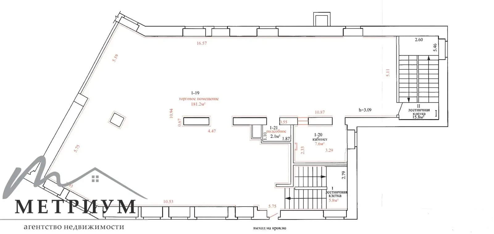
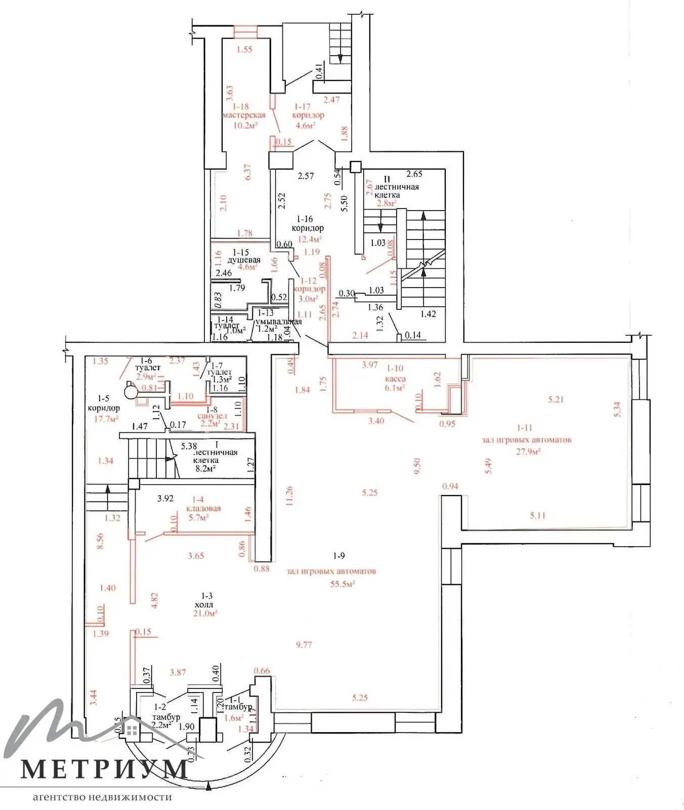
Описание

Сдаётся в аренду многофункциональное помещение на проспекте Рокоссовского 1!

У нас есть то, что вам нужно!

Предлагаем в аренду помещение в отдельно стоящем здании с двумя этажами, которое идеально подойдёт для торговли, сферы услуг, общепита или развлекательной деятельности.

Аренда помещения поэтажно !

Характеристики помещения:

Первый этаж: 180 м2

  • Отдельный вход

  • Рампа для удобной выгрузки

  • Санузел

  • Помещение для хранения

Второй этаж: 287 м2

  • Отдельный вход

  • Пожарный выход

  • Выход на крышу

  • Санузел

Все необходимые коммуникации:

• Отопление

• Водоснабжение

• Электричество

• Приточно-вытяжная вентиляция

• Кондиционер

Уникальное расположение:

Находится на перекрестке пр. Рокоссовского и ул. Ванеева в густонаселенном районе с высокой проходимостью. Ваш бизнес будет на виду у множества потенциальных клиентов!

Парковка: Удобные условия для ваших клиентов и сотрудников.

Не упустите возможность сделать ваш бизнес успешным! Звоните прямо сейчас, чтобы узнать подробности и записаться на просмотр!

Ваш бизнес заслуживает лучшего — арендуйте наше помещение уже сегодня!

 

Договор № 426/1а от 27.12.2024

ООО Агентство недвижимости «Метриум»

УНП 193581536

Лицензия № 02240/425, выдана Министерством Юстиции РБ 27.08.2021

Код объекта: 2704 Договор с собственником: 426/1 от 2024-12-27 Опубликовано: 20.02.2025 Обновлено: 22.11.2025
0 / 0 / 5
Динамика цен за кв. метрДинамика цен
Похожие объекты
Адрес
Комнат
Площадь
Этаж
Цена за м2
Цена
472 м2
1 из 2
68 р. за м2

Вы просматривали

6 002 р./мес. 34 р. за м2
Партизанский р-н
Сервис, 472 м2
Минск, пр-т Рокоссовского, д. 1
31 920 р./мес.
68 р. за м2
Агентство недвижимости Метриум
Пожалуйста, скажите, что нашли этот объект на Domovita.by
+
Фильтр сохранен