Выберите валюту для сайта:
BYN
Подать БЕСПЛАТНО

Объект сферы услуг в Минске, ул. 50 лет Победы, д. 22, код 3221

37.7 м2 1 этаж из 19 Первомайский район / Восточный Уручье
2 987 р./мес.
Сервис
Город Минск
Район Первомайский район
Микрорайон Восточный
Адрес ул. 50 лет Победы, д. 22
Метро Уручье
Время до метро пешком 26 мин.
Время до метро на транспорте 14 мин.
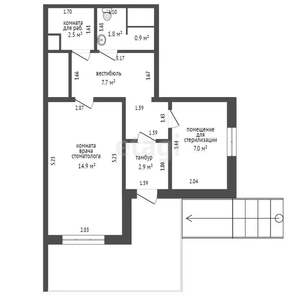
Площадь 37.7 м2
Этаж 1

Описание

В данный момент времени объект функционирует как стоматологический кабинет.

Помещение расположено на 1 этаже жилого 19 этажного дома 2016 г. постройки. Молодой район современной застройки. Рядом большая парковка без шлагбаумов. Наружные рекламные вывески хорошо просматриваются с остановок общественного транспорта, которые расположены рядом с домом.

Напротив строиться многопрофильная поликлиника с вводом эксплуатацию в 25-м году, что позволит создать высокую проходимость потенциальны клиентов. Прилегающая территория ухожена и поддерживается в порядке товариществом собственников, коммунальные платежи невысокие.
В помещение заведено оптоволокно как «Белтелеком», так и «А1» (выбор интернет провайдера в зависимости от текущих предложений).
Технический паспорт соответствует современным требованиям ТКП И СанПина по набору помещений. Вся необходимая современная актуальная документация в соответствии с требованиями законодательства
Вход в помещение оборудован с учетом требуемых современных нормативов без барьерной среды, вент-фасад в проекции помещения выполнен из японской фиброцементной плиты. Вывески с подсветкой, отдельная линия на каждую, выключатели расположены внутри помещения, в зону вывески выведен слаботочный кабель для интернет-подключения интерактивного оборудования (экранов рекламы). Современное наружное освещение входа в помещение.
Безопасность: видеонаблюдение внутри помещения обеспечивается 3 камерами (одна со звуком), с выводом на экран монитора в кабинете врача и на мобильный телефон руководителя через приложение, видео-домофон, контроль доступа персонала с нумерованными электронными ключами (снятии/постановка на контроль сопровождается смс на мобильный телефон руководителя с указанием номера ключа), система локальной сигнализации (при несанкционированном доступе звуковая сирена, приходит смс)не требует дополнительных оплат, видеонаблюдение снаружи (организовано ТС). МЧС –круглосуточный контроль и недорогое техобслуживание.
Электрика: все монтажные работы выполнены согласно проекту электрики, официально выделена дополнительная мощность для энергопотребителей помещения, общая вводная мощность на помещение 10квт. Согласно проекту, организован и официально введен в эксплуатацию дополнительный счетчик на водонагревательный бойлер. Все автоматы и УЗО смонтированы с высокой степенью безопасности.
Ремонт внутри помещения выполнен в соответствии современными санитарными нормами. Цветовые решения – белый цвет как основной, светло-серый и бирюзовый. Применены керамическая плитка, сертифицированная краска для медицинских учреждений Condor Laubglanz, пластиковые медицинские двери выполнены по специальному заказу, медицинская мебель, раковины с антикоррозийным покрытием, дозаторы, салфетницы, электросушка.

Объект сдаётся в аренду со всей мебелью и техникой, при условии покупки стоматологического оборудования, которое можно будет приобрести за отдельную плату по выгодной цене.

Также рассмотрим варианты продажи данного объекта, в том числе с использование лизинга

Приглашаем вас на просмотр данного объекта, который также можно приобрести с использованием лизинга!

ООО «ЭТАЖИ юнайтед»
УНП: 193673318
Договор 13/1A от 10.07.2025
Лицензия на оказание риэлтерских услуг №02240/460 МЮ РБ от 03.04.2023

Код объекта: 3221 Договор с собственником: 13/1а от 2025-07-10 Опубликовано: 12.07.2025 Обновлено: 11.12.2025
0 / 1 / 24
Динамика цен за кв. метрДинамика цен
Похожие объекты
Адрес
Комнат
Площадь
Этаж
Цена за м2
Цена
415.3 м2
1 из 2
35 р. за м2

Вы просматривали

2 987 р./мес. 79 р. за м2
Первомайский р-н
Сервис, 37.7 м2
Минск, ул. 50 лет Победы, д. 22
2 987 р./мес.
79 р. за м2
Сергей
Пожалуйста, скажите, что нашли этот объект на Domovita.by
+
Фильтр сохранен