Выберите валюту для сайта:
BYN
Подать БЕСПЛАТНО

Помещение под сферу услуг в Минске, ул. Сурганова, д. 29, код 2282

51.6 м2 1 этаж из 4 Первомайский район / Гикало Академия наук
1 568 р./мес.
Сервис
Город Минск
Район Первомайский район
Микрорайон Гикало
Адрес ул. Сурганова, д. 29
Метро Академия наук
Время до метро пешком 6 мин.
Время до метро на транспорте 4 мин.
Год постройки 2004 г.
Площадь 51.6 м2
Этаж 1
Удобства
Телефон
Кондиционер
Парковка

Описание

Аренда помещения под услуги 51.6 м.кв. в центре Минска на Сурганова 29.

Арендатор не оплачивает услуги агентства!

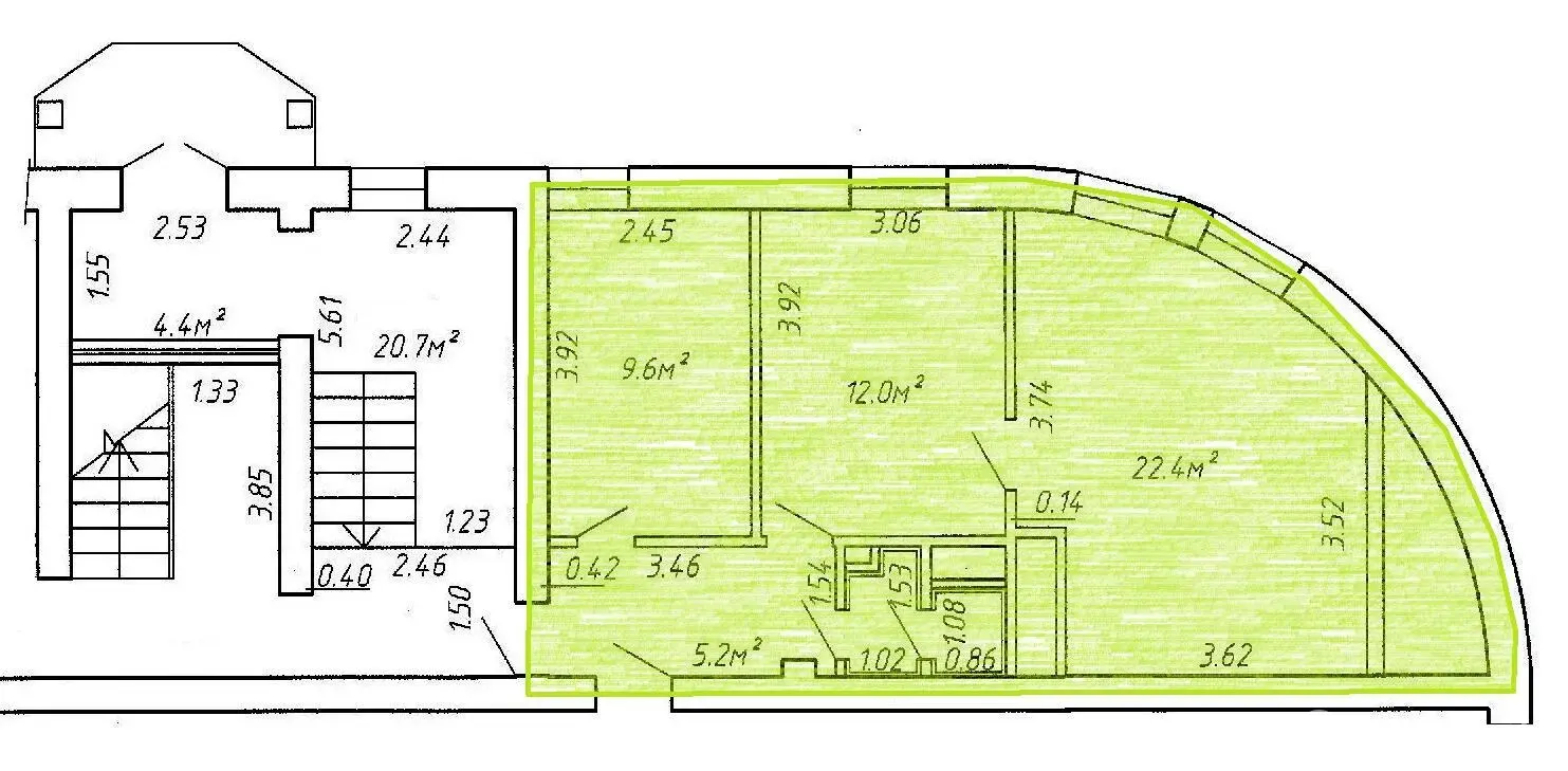
Помещение с отделкой, 1 этаж, 3 кабинета (9,6 м.кв., 12,0 м.кв., 22,4 м.кв.).

Вентиляция, кондиционер, пожарно-охранная сигнализация, центральное отопление, скоростной интернет, телефон.

Доступ в здание круглосуточный.

Охрана у входа, парковка у здания.

Удобный район с развитой инфраструктурой: продуктовые магазины, общепит, торговые центры.

Непосредственная близость к центру города.

Рядом остановки общественного транспорта

Менее 500 м до ст. метро "Академия наук".

Идеально подходит под офис с кабинетами, сферу услуг, салон красоты, медцентр, стоматологию, обучающие курсы.

Затраты на коммунальные услуги, включая электроэнергию, 5...7 р./м.кв.

Аренда без НДС (0%).

Звоните!

---

ООО «ЭТАЖИ юнайтед»
УНП: 193673318
Договор № 28/1а от 18.01.2024
Лицензия на оказание риэлтерских услуг №02240/460 МЮ РБ от 03.04.2023

Код объекта: 2282 Договор с собственником: № 28/1а от 2024-01-18 Опубликовано: 21.01.2024 Обновлено: 06.02.2026
1 / 0 / 0
Динамика цен за кв. метрДинамика цен
Похожие объекты
Адрес
Комнат
Площадь
Этаж
Цена за м2
Цена
187.4 м2
1 из 4
50 р. за м2
187.4 м2
50 р. за м2
187.2 м2
1 из 4
50 р. за м2

Вы просматривали

3 005 р./мес. 43 р. за м2
Центральный р-н
9 959 р./мес. 24 р. за м2
Центральный р-н
14 985 р./мес. 118 р. за м2
Центральный р-н
1 568 р./мес. 30 р. за м2
Первомайский р-н
Сервис, 51.6 м2
Минск, ул. Сурганова, д. 29
1 568 р./мес.
30 р. за м2
Петр
Пожалуйста, скажите, что нашли этот объект на Domovita.by
+
Фильтр сохранен