Выберите валюту для сайта:
BYN
Подать БЕСПЛАТНО

Аренда торгового помещения на ул. Алибегова, д. 15 в Минске, 6075EUR, код 967746

552.3 м2 3 этаж из 4 Московский район / Юго-Запад Петровщина
20 542 р./мес.
Торговый объект
Город Минск
Микрорайон Юго-Запад
Адрес ул. Алибегова, д. 15
Метро Петровщина
Время до метро пешком 15 мин.
Время до метро на транспорте 8 мин.
Год постройки 2011 г.
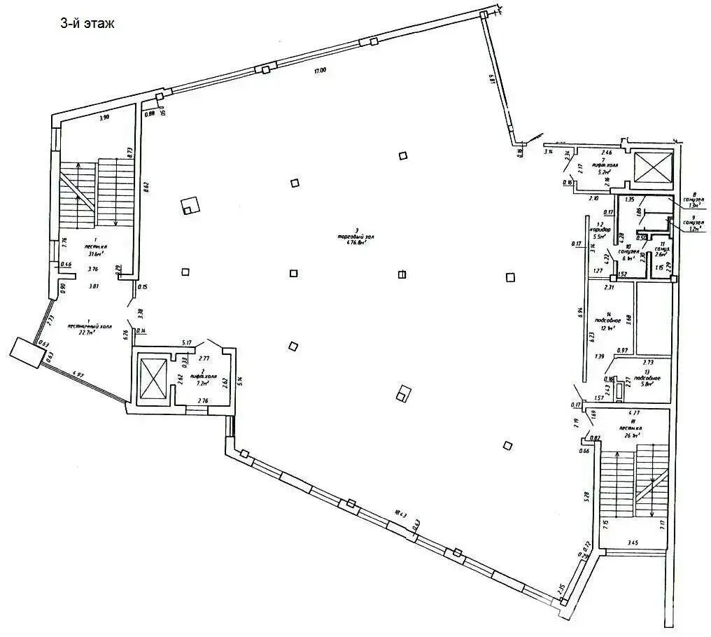
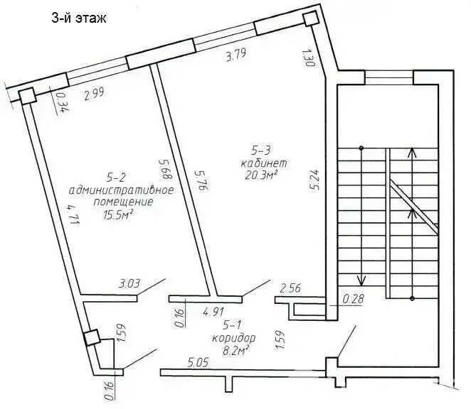
Площадь 552.3 м2
Этаж 3

Описание

Аренда торгового помещения
Адрес: г. Минск, ул. Алибегова, д. 15
Площадь: 552,3 м2
Стоимость: 11 €/м2, в т.ч. НДС

Аренда торгово - административного помещения с отдельным входом, на 3 этаже четырехэтажного панельного здания магазина 2011 года постройки, на площади земельного участка 0,3113 га.
Подходит под торговлю, сферу услуг, офис, кафе.

Характеристики:
- Отдельный вход с лестницы, 2 запасных входа
- Санузел
- Помещения для администрации, отдыха, приема пищи
- Грузовой + пассажирский лифт
- Отопление
- Вентиляция
- Отличные подъездные пути
- Доступ 24/7
- Парковка
- Отличные подъездные пути
- Плотная жилая застройка

Арендатор не оплачивает услуги риэлтерской организации!

Ваш агент – Андрей Смолка
Больше предложений на САЙТЕ Silvan7800.by
Присоединяйтесь к нам в соцсетях:


Договор № 75/3а от 26.08.2025 по 25.08.2027
ООО «Сильван-Инвест», УНП 192927433, лицензия №02240/383, Министерство юстиции РБ, 24.09.2019.

Код объекта: 967746 Договор с собственником: 75/3а от 2025-08-26 Опубликовано: 09.10.2025 Обновлено: 09.11.2025
0 / 0 / 2
Динамика цен за кв. метрДинамика цен
Похожие объекты
Адрес
Комнат
Площадь
Этаж
Цена за м2
Цена
567.8 м2
3 из 4
34 р. за м2

Вы просматривали

8 643 р./мес. 41 р. за м2
Центральный р-н
20 542 р./мес. 37 р. за м2
Московский р-н
1 488 р./мес. 44 р. за м2
Октябрьский р-н
2 346 р./мес. 58 р. за м2
Октябрьский р-н
3 028 р./мес. 45 р. за м2
Советский р-н
5 167 р./мес. 68 р. за м2
Октябрьский р-н
Торговый объект, 552.3 м2
Минск, ул. Алибегова, д. 15
20 542 р./мес.
37 р. за м2
Смолка Андрей
Пожалуйста, скажите, что нашли этот объект на Domovita.by
+
Фильтр сохранен