Выберите валюту для сайта:
BYN
Подать БЕСПЛАТНО

Аренда торговой точки на ул. Интернациональная, д. 3 в Минске, 1500EUR, код 965107

3680.5 м2 1 этаж из 6 Центральный район / Ленина Немига
5 072 р./мес.
Торговый объект
Город Минск
Район Центральный район
Микрорайон Ленина
Адрес ул. Интернациональная, д. 3
Метро Немига
Время до метро пешком 7 мин.
Время до метро на транспорте 4 мин.
Год постройки 2023 г.
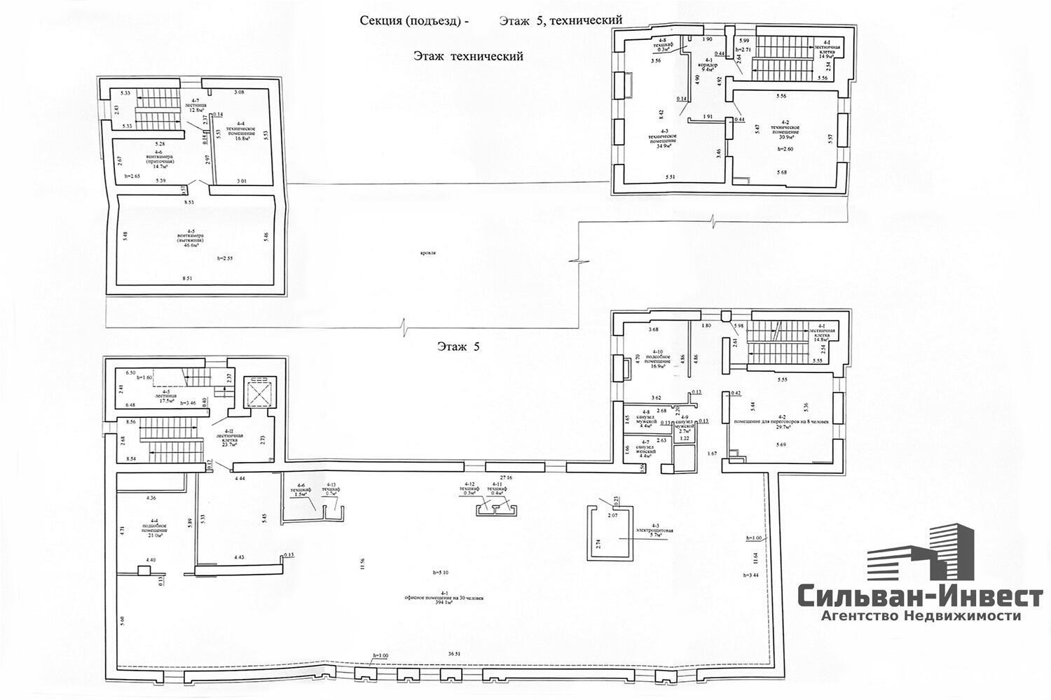
Площадь 3680.5 м2
Этаж 1
Удобства
Круглосуточный доступ
Отдельный вход
Лифт
Парковка

Описание

Аренда торговых помещений в историческом центре Минска
Адрес: г. Минск, ул. Интернациональная, 3
Площадь: 100 - 3 680,5 м2
Стоимость аренды: 15 €/ м2, в т.ч. НДС
Аренда многофункциональных помещений под торговлю, студию, арт-галерею, сферу услуг, выставочные залы, общепит, развлечения и т.п.

Помещения расположены на 1, 2, 3, 4 и 5 этаже кирпично - блочного 6 – этажного многофункционального здания, прошедшего полную реконструкцию в 2023 году. Реконструкция выполнена по дизайнерскому проекту с оригинальными решениями пространства.

Расположение в исторической части Минска «Верхний город», рядом ст. метро «Немига», «Октябрьская», хорошее транспортное сообщение, активный пешеходный трафик, выход на пешеходную ул. Комсомольскую.

Преимущества:
- 4 отдельных входа
- Электричество
- Водоснабжение
- Отопление
- Вентиляция
- Просторные помещения
- Мансардные окна
- Отличные подъездные пути
- Доступ 24/7
- Помещения open space
- Наличие разгрузочной рампы и лифтов
- Гостевой крытый паркинг

Арендатор не оплачивает услуги риэлтерской организации!

Ваш агент – Андрей Смолка
+375(44) 7-800-863, +375(29) 7-800-863
Короткий номер (МТС, А1, Life): 7-800


Больше предложений на САЙТЕ Silvan7800.by

Присоединяйтесь к нам в соцсетях:
Instagram
Facebook
VK
OK
YouTube

Договор № 54/3а - с 26.04.2024 по 25.04.2026
ООО «Сильван-Инвест», УНП 192927433, лицензия №02240/383, Министерство юстиции РБ, 24.09.2019.

Код объекта: 965107 Договор с собственником: 54/3а от 2024-04-26 Опубликовано: 23.05.2024 Обновлено: 27.11.2025
0 / 0 / 17
Динамика цен за кв. метрДинамика цен
Похожие объекты
Адрес
Комнат
Площадь
Этаж
Цена за м2
Цена
500 м2
1 из 5
85 р. за м2
287.4 м2
3 из 5
51 р. за м2
270 м2
2 из 5
47 р. за м2
176.8 м2
1 из 5
68 р. за м2
200 м2
1 из 1
85 р. за м2

Вы просматривали

Торговый объект, 3680.5 м2
Минск, ул. Интернациональная, д. 3
5 072 р./мес.
51 р. за м2
ООО "Сильван-Инвест"
Пожалуйста, скажите, что нашли этот объект на Domovita.by
+
Фильтр сохранен