Выберите валюту для сайта:
BYN
Подать БЕСПЛАТНО
Объект в архиве
К результатам поиска

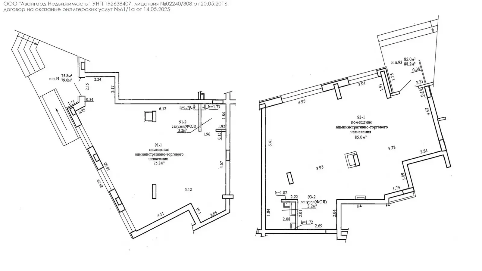
Снять торговое помещение на ул. Нововиленская, д. 51 в Минске, 2923BYN, код 967175

88.2 м2 1 этаж из Центральный район / Старовиленский
Объект в архиве
Уважаемые пользователи, данное объявление больше не актуально. Поэтому мы убрали все контакты продавца.
Продолжить поиск
Торговый объект
Город Минск
Район Центральный район
Микрорайон Старовиленский
Адрес ул. Нововиленская, д. 51
Площадь 88.2 м2
Этаж 1

Описание

Предлагаем Вашему вниманию административно-торговые помещения в современном жилом комплексе «Левада», расположенные по адресу: ул. Нововиленская, 51. Площадь помещений от 79 кв.м. до 88,2 кв.м.

 

Все помещения расположены на первом этаже заселенного жилого дома, с отдельным входом, что обеспечивает круглосуточный доступ. Удобное расположение помещений позволяет организовать пространство под любой бизнес-проект: шоурум, торговлю, общественное питание, сферу услуг и т.д.

 

Общие характеристики:

-помещения без отделки (пол - стяжка, стены – штукатурка);

-собственный санузел;

-установлены радиаторы отопления;

-вытяжная вентиляция;

-заведена оптоволоконная сеть и телефония;

-установлена система пожаротушения;

-подведена вода и канализация;

-установлены счетчики учета электроэнергии и воду.

 

Рядом расположена удобная плоскостная парковка.

 

Новый престижный ЖК с перспективами развития и застройки, удобный выезд на МКАД и ул.Орловская.

 

Арендатор не оплачивает услуги агентства!

Ставка включает НДС.

 

Звоните прямо сейчас! Покажем помещение и дадим более подробную информацию по объекту.

Код объекта: 967175 Договор с собственником: 61/1а от 2025-05-14 Опубликовано: 29.05.2025 Обновлено: 28.09.2025
0 / 0 / 15
Динамика цен за кв. метрДинамика цен
Похожие объекты
Адрес
Комнат
Площадь
Этаж
Цена за м2
Цена
121 м2
1 из 1
49 р. за м2
+
Фильтр сохранен