Выберите валюту для сайта:
BYN
Подать БЕСПЛАТНО

Продажа торгового помещения на пр-т Независимости, д. 58 в Минске, 840650USD, код 996064

365.5 м2 1 этаж из 4 Советский район / Гикало Площадь Якуба Коласа
3 040 485 р.
2 434 270 р.
Торговый объект
Город Минск
Район Советский район
Микрорайон Гикало
Адрес пр-т Независимости, д. 58
Метро Площадь Якуба Коласа
Время до метро пешком 4 мин.
Время до метро на транспорте 2 мин.
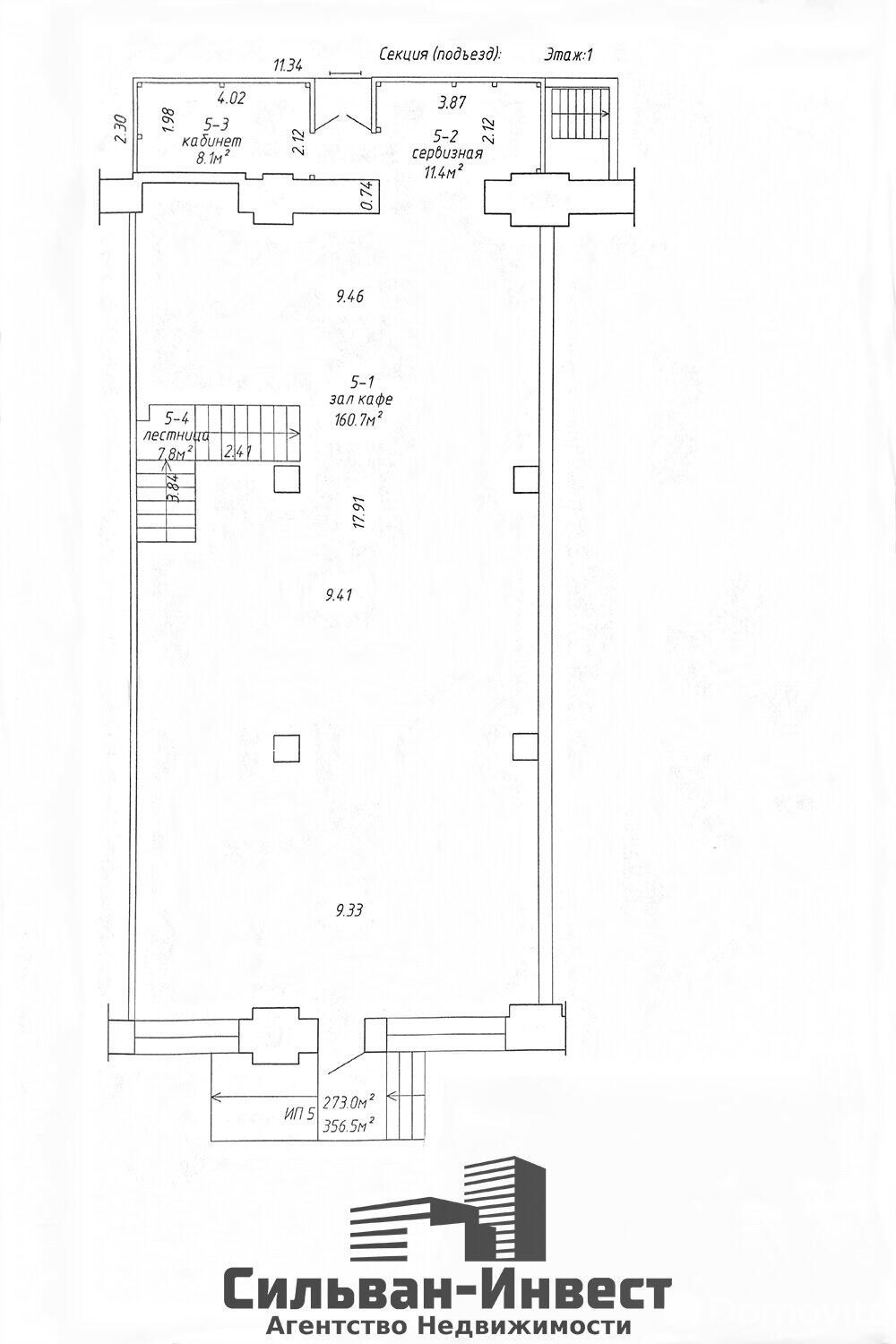
Площадь 365.5 м2
Этаж 1
Удобства
Круглосуточный доступ
Отдельный вход

Описание

Продажа торгово - административного помещения.

Адрес: г. Минск, ул. Независимости, д. 58

Площадь: 365,5 м2

Продажа 2- этажного торгово - административного помещения, расположенного в подвальном и на 1 этажах четырехэтажного здания 1946 года постройки,

Подходит под торговлю, сферу услуг.

Характеристики:

- Статусная локация

- Отдельный вход

- Электричество

- Водоснабжение

- Отопление

- Вентиляция

- Отличные подъездные пути

- Доступ 24/7

- Санузел

- Рампа

- Повышенный пешеходный и покупательский траффик

В пешей доступности находятся ст. метро Академия наук и Якуба Коласа, остановки общественного транспорта.

Покупатель не оплачивает услуги риэлтерской организации!

Ваш агент – Андрей Смолка

+375(44) 7-800-863, +375(29) 7-800-863

Короткий номер (МТС, А1, Life): 7-800

Больше предложений на САЙТЕ Silvan7800.by

Присоединяйтесь к нам в соцсетях:

Instagram

Facebook

VK

OK

YouTube

Договор № 62/4 - с 20.03.2024 по 19.03.2026

ООО «Сильван-Инвест», УНП 192927433, лицензия №02240/383, Министерство юстиции РБ, 24.09.2019.

Код объекта: 996064 Договор с собственником: 62/4 от 2024-03-20 Опубликовано: 22.03.2024 Обновлено: 25.11.2025
0 / 0 / 105
Динамика цен за кв. метрДинамика цен
Похожие объекты
Адрес
Комнат
Площадь
Этаж
Цена за м2
Цена
19.1 м2
3 из 3
3 637 р. за м2
18.9 м2
3 из 4
3 064 р. за м2
19 м2
2 из 4
4 115 р. за м2
18.8 м2
3 из 4
4 159 р. за м2
19 м2
2 из 4
3 201 р. за м2

Вы просматривали

Торговый объект, 365.5 м2
Минск, пр-т Независимости, д. 58
2 434 270 р.
6 660 р. за м2
Андрей Смолка
Пожалуйста, скажите, что нашли этот объект на Domovita.by
+
Фильтр сохранен