Подать БЕСПЛАТНО

Продажа 2-этажного коттеджа в Минске, Минская область пер. Заречный 3-й, 134900USD, код 650755

г. Минск, пер. Заречный 3-й
Показать на карте
0
405 887 р.
Код объекта: 650755
102.9 м2
5.82 соток
Обновлено: 02.10.2025
405 887 р.
Предложить свою цену

О доме

Площадь общая
102.9 м2
Площадь дома
102.9 м2
Участок
5.82 соток
В продаже
Целый дом
Год постройки
2019
Материал стен
Блоки
Материал крыши
Шифер

Коммуникации

Отопление: Газовое
Водоснабжение: Центральное
Газ: В доме
Электричество: Есть
Телефон: Да
Канализация: 1

Описание

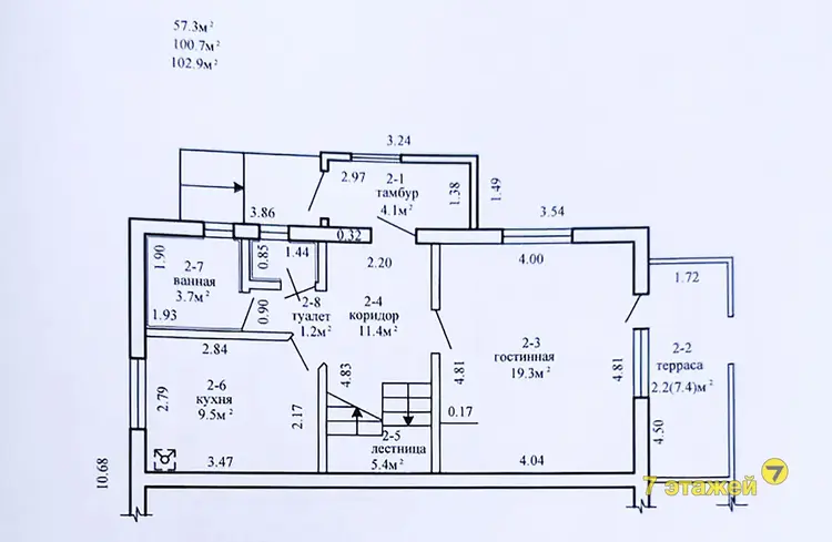
Продаётся квартира в блокированном жилом доме с новым ремонтом в Минске на Заречном переулке 2019 года постройки. Введён в эксплуатацию в марте 2025 года. Площадь 102,9 м2. Коммуникации: вода - центральная, свет - 220В, газ - центральный, канализация - центральная. Участок 1,5 стоки в ПНВ. Три изолированные комнаты. Первый этаж: гостиная - 19.3 м2, кухня - 9,5 м2, раздельный санузел, коридор, тамбур и терраса. Высота потолка 3 м. Второй этаж: две изолированные комнаты - 17,4 м2 и 20,6 м2 и кладовка - 2,2 м2. Ищете идеальное место для жизни в столице? Представляем вашему вниманию прекрасный частный дом площадью 102,7м², расположенный в живописном районе Минска. Этот дом введен в эксплуатацию и теперь готов принять своих новых владельцев. Вас ждёт стильный и современный интерьер, выполненный с использованием высококачественных материалов. Установлена новая сантехника и электрика, что гарантирует комфортное и беззаботное проживание. Что вас ждёт: Новый ремонт: Вам не придётся тратить время и средства на ремонтные работы. Оптимальная площадь: 100 квадратных метров — это идеальное пространство для семьи, где каждый найдёт свой уголок. Удобное расположение: Дом находится в Минске, что обеспечивает доступ ко всей городской инфраструктуре: магазинам, школам, детским садам, медицинским учреждениям и остановкам общественного транспорта. Собственный участок: Наслаждайтесь приватностью и возможностью обустроить свой сад, зону отдыха или барбекю. Не упустите свой шанс стать обладателем этого замечательного дома. Быстрый выход на сделку! Окажем помощь в продаже вашего объекта для покупки! Ответим на все интересующие вопросы, согласуем удобное время показа! Консультация и помощь в подборе кредита! Полное юридическое сопровождение сделки гарантируем! Приглашаем к просмотру и покупке! Звоните прямо сейчас!
АгентАгент
9 лет на сайте
Показать почту
Пожаловаться на объявление
Агентство недвижимости
7 этажей

Местоположение

г. Минск, пер. Заречный 3-й
Опубликовано: 02.10.2025

Похожие объекты

В этом районе
150 440 р.
Заводской район, ул. Красная Слобода
Могилевская
25 мин
14 мин
36.6
20.4
11.1 м2
15 соток
195 572 р.
Заводской район, ул. Красная Слобода
Могилевская
25 мин
14 мин
30
14.2
9.1 м2
12.3 соток