Подать БЕСПЛАТНО

Продажа полдома в 3-этажном доме в Минске, ул. Авангардная, д. 4, код 651287

г. Минск, ул. Авангардная, 4
Показать на карте
Тракторный завод
24 мин
13 мин
395 864 р.
Код объекта: 651287
108.6 м2
8.36 соток
Обновлено: 11.07.2025
395 864 р.
Предложить свою цену

О доме

Площадь общая
108.6 м2
Площадь дома
108.6 м2
Участок
8.36 соток
В продаже
Полдома
Готовность дома, %
100
Год постройки
1999
Материал стен
Кирпич
Материал крыши
Шифер

Коммуникации

Газ: В доме
Электричество: Есть
Канализация: Есть

Описание

Для тех, кто хотел бы совместить прелести комфортной загородной жизни с удобством проживания в городе с развитой инфраструктурой и транспортным сообщением предлагаем к покупке просторную трехуровневую квартиру в двухквартирном блокированном жилом доме по улице Авангардной!

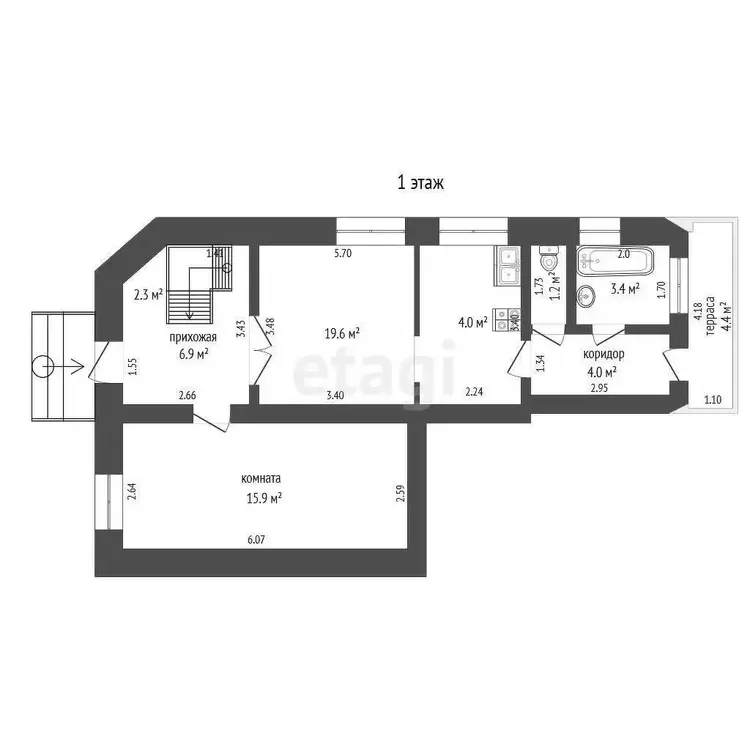
Общая площадь квартиры по СНБ составляет 149,8 м2. На первом этаже квартиры расположена просторная кухня-столовая и изолированная жилая комната 15,9 м2, а также раздельный санузел. На втором этаже – жилая комната 27,3 м2, две отдельных комнаты площадью 17,0 и 10,5 м2, а также застекленная лоджия и веранда 14,3 м2. На третьем уровне квартиры в мансардном этаже расположена летняя комната.

В квартире частично установлены стеклопакеты, для удобства хранения вещей предусмотрены шкафы-купе.

В квартире есть все коммуникации: газ, электричество, вода, местная канализация. Отопление газовое. В дом проведен оптоволоконный кабель - интернет, телевидение.

Вход в квартиру осуществляется с придомовой территории, на которой находится гараж, сарай и баня (подлежит реконструкции), три подвальных помещения, а также огород с клубникой, малиной, смородиной и крыжовником, на входе в дом растут плодовые деревья (вишня).

Отличная инфраструктура и удобный подъезд к дому! В шаговой доступности детсад, школа, гимназия, поликлиника, магазины, аптека, центр дополнительного образования детей, бассейн. Хорошее транспортное сообщение, до двух линий метро (станции Тракторный завод и Академия наук) 15 минут на транспорте. Рядом Ботанический сад, парк Челюскинцев и Слепянская водная система.

Тихое и спокойное место для жизни со всеми радостями городской жизни!

Продадим Вашу недвижимость для покупки этой.

Бесплатно для Вас консультация ипотечного брокера, согласование кредита.

ПРИГЛАШАЕМ НА ПРОСМОТР В ЛЮБОЕ УДОБНОЕ ДЛЯ ВАС ВРЕМЯ!

ООО «ЭТАЖИ юнайтед»

УНП: 193673318

Договор 1250/1 от 09.07.2025

Лицензия на оказание риэлтерских услуг №02240/460 МЮ РБ от 03.04.2023

МарияАгент
2 года на сайте
Показать почту
Пожаловаться на объявление
Агентство недвижимости
ООО «ЭТАЖИ юнайтед»

Местоположение

г. Минск, ул. Авангардная, 4
Опубликовано: 11.07.2025

Похожие объекты

В этом районе
689 021 р.
Партизанский район, ул. Аннаева
340
126.7
34 м2
5.68 соток
939 040 р.
Партизанский район, пр-д Коллективный
Тракторный завод
25 мин
14 мин
253
118
м2
6.05 соток
218 620 р.
Партизанский район, пер. Столетова
Тракторный завод
25 мин
14 мин
32.8
19.3
9.8 м2
5 соток