О квартире
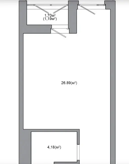
Площадь
32.26 м2
общая
24 м2
жилая
8.26 м2
кухня
Отдельных комнат
1 комната
Санузел
совмещенный
Балкон
Лоджия
Тип ремонта
Без отделки
О доме
Этаж
3 из 12
Материал стен
Монолитный
Год постройки
2026
Описание
Вариант — Агент
9 лет на сайте
Условия сделки:Чистая продажа
Показать почту
Пожаловаться на объявление
Агентство недвижимости
Вариант
УНП: 192171788 Лицензия: от 24.12.2013 № 204
Договор №: #223/2 от 24.11.2025






























