О квартире
Площадь
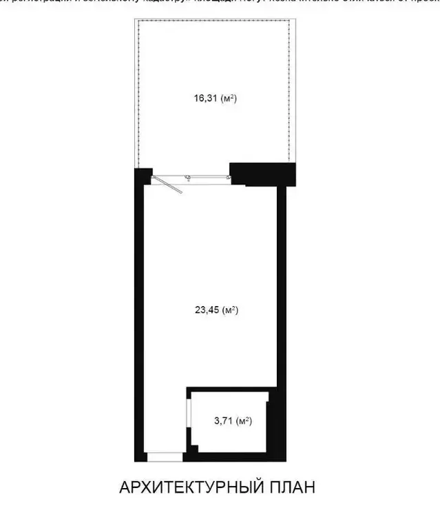
43.47 м2
общая
23 м2
жилая
Отдельных комнат
1 комната
Балкон
Лоджия
О доме
Этаж
3 из 17
Год постройки
2026
Описание
Екатерина М — Агент
2 года на сайте
Условия сделки:продажа
Показать почту
Пожаловаться на объявление
Агентство недвижимости
ООО «ЭТАЖИ юнайтед»
УНП: 193673318 Лицензия: Министерство юстиции РБ, 2023-04-03
Договор №: 52/1 от 2024-01-05


















