О квартире
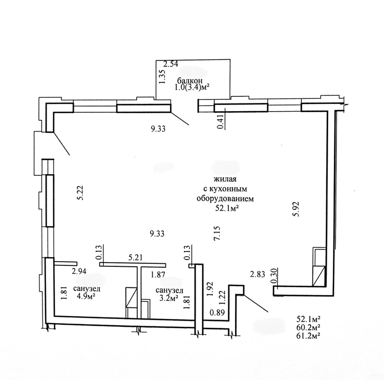
Площадь
61.2 м2
общая
52.1 м2
жилая
Отдельных комнат
1 комната
Санузел
раздельный
Балкон
Балкон
Тип ремонта
С отделкой
О доме
Этаж
2 из 6
Материал стен
Монолитный
Год постройки
2025
Описание
Марьяна — Агент
8 лет на сайте
Условия сделки:продажа
Показать почту
Пожаловаться на объявление
Агентство недвижимости
Мариэлт
УНП: 192776463 Лицензия: от 04.04.2017 № 59
Договор №: 221/1 от 2026-02-18

























































