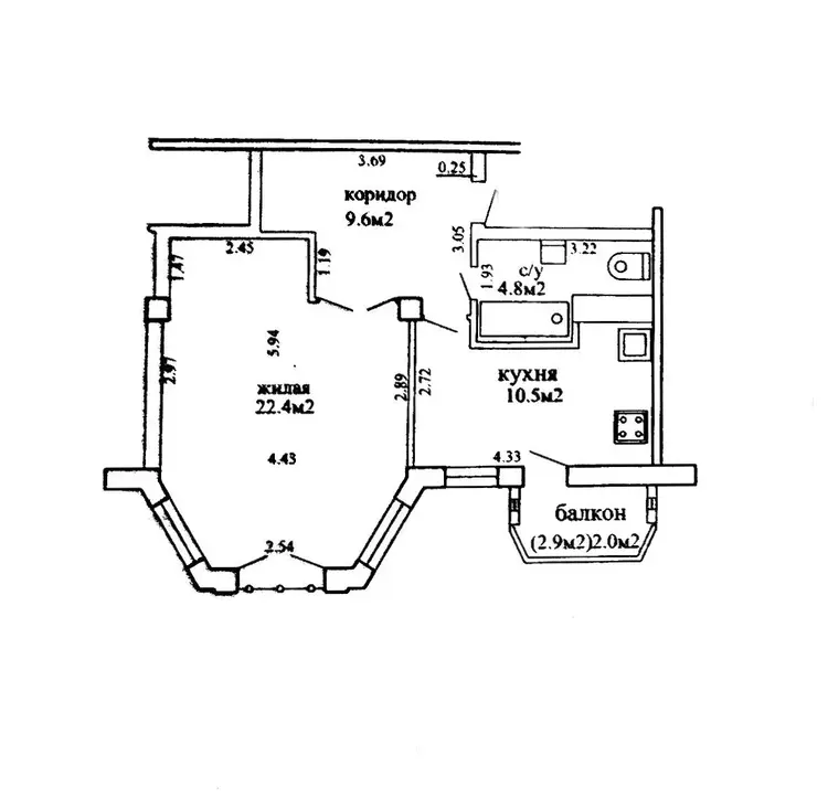
О квартире
Площадь
49.3 м2
общая
22.4 м2
жилая
10.5 м2
кухня
Отдельных комнат
1 комната
Санузел
совмещенный
Балкон
Лоджия
Тип ремонта
Хороший
О доме
Этаж
7 из 9
Материал стен
Панельный
Год постройки
2007
Описание
Павел — Агент
3 года на сайте
Условия сделки:продажа
Показать почту
Пожаловаться на объявление
Агентство недвижимости
"АН Фаттория"
УНП: 193625457 Лицензия: от 11.07.22г №101
Договор №: 69/1 от 2026-01-30


















