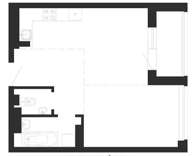
О квартире
Площадь
45.37 м2
общая
30 м2
жилая
8 м2
кухня
Отдельных комнат
1 комната
Санузел
совмещенный
Балкон
Лоджия
Тип ремонта
Без отделки
О доме
Этаж
14 из 15
Год постройки
2027
Описание
Ольга Бандарчук — Агент
2 года на сайте
Условия сделки:продажа
Показать почту
Пожаловаться на объявление
Агентство недвижимости
ООО «ЭТАЖИ юнайтед»
УНП: 193673318 Лицензия: Министерство юстиции РБ, 2023-04-03
Договор №: 52/1 от 2024-01-05

















































