О квартире
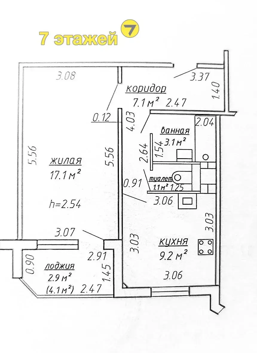
Площадь
37.6 м2
общая
17.1 м2
жилая
9.2 м2
кухня
Отдельных комнат
1 комната
Санузел
раздельный
Балкон
Лоджия застеклена
Тип ремонта
С отделкой
О доме
Этаж
3 из 9
Материал стен
Панельный
Год постройки
2013
Описание
Агент — Агент
9 лет на сайте
Условия сделки:Любые
Показать почту
Пожаловаться на объявление
Агентство недвижимости
7 этажей
УНП: 192361483 Лицензия: от 14.11.2014 № 225
Договор №: 1485/3 от 16.12.2025





































