Подать БЕСПЛАТНО

Купить 2-комнатную квартиру в Минске, пр-т Мира, д. 18

г. Минск, пр-т Мира, 18
Показать на карте
Октябрьский район
Аэродромная
7 мин
4 мин
324 300 р.
Цена за м2: 9 213 р.
117 500 $
3 338 $/м2
Код объекта: 1201027
2 комнаты
35.2 м2
24 этаж из 25
Обновлено: 26.09.2025
324 300 р.
Цена за м2: 9 213 р.
117 500 $
3 338 $/м2
Предложить свою цену

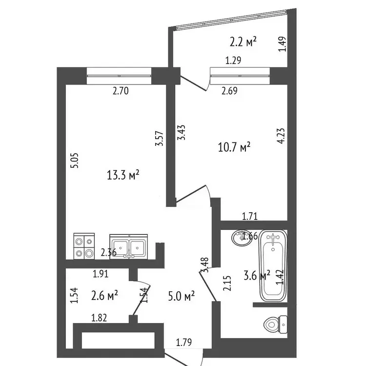
О квартире

Площадь
35.2 м2
общая
24 м2
жилая
Санузел
совмещенный
Балкон
Лоджия
Тип ремонта
Хороший

О доме

Этаж
24 из 25
Год постройки
2022

Описание

Стильная евродвушка в Минск-Мире — готовое решение для жизни и инвестиций.

Квартира с современным ремонтом и узаконенной перепланировкой на 24 этаже дома «Вильнюс» (квартал Западная Европа). Дом сдан в 2021 году, большинство ремонтов завершены — тихо и комфортно. Площадь: по СНБ — 37,6 м2; общая — 35,4 м2.

Просторная кухня-гостиная и отдельная спальня, гардеробная система, панорамные окна с безопасными замками, остеклённая лоджия. Высокий этаж открывает вид на город и создаёт ощущение уюта и приватности. В квартире остаётся мебель и техника — можно заехать сразу или выгодно сдавать в аренду.

Отличная локация: до метро «Аэродромная» всего 10 минут пешком. В шаговой доступности школа, детский сад, поликлиника, магазины и AviaMall. В доме — три скоростных лифта, видеонаблюдение, помещение для велосипедов и колясок, зона ожидания гостей с санитарной комнатой.

Звоните и договоримся о просмотре в удобное время. Дополнительно — помощь в продаже вашей недвижимости и консультации по кредитованию.

ООО «ЭТАЖИ юнайтед»

УНП 193673318

Договор № 2047/1 от 25.09.2025

Лицензия на оказание риэлтерских услуг № 02240/460 МЮ РБ от 03.04.2023

ВадимАгентство
2 года на сайте
Условия сделки:продажа
Показать почту
Пожаловаться на объявление
Агентство недвижимости
ООО «ЭТАЖИ юнайтед»

Местоположение

г. Минск, пр-т Мира, 18
Октябрьский район
Опубликовано: 26.09.2025

Возможно, вам будет интересно

Похожие объекты

На этой улицеВ этом домеВ этом районе
354 704 р.
Цена за м2: 5 461 р.
137 314 $
1 979 $/м2
Октябрьский район, пр-т Мира
Аэродромная
7 мин
4 мин
4-комн. кв
69.4
м2
1 этаж из 25
342 784 р.
Цена за м2: 5 461 р.
140 876 $
1 979 $/м2
Октябрьский район, пр-т Мира
Аэродромная
7 мин
4 мин
4-комн. кв
71.2
м2
1 этаж из 25
329 202 р.
Цена за м2: 5 461 р.
140 876 $
1 979 $/м2
Октябрьский район, пр-т Мира
Аэродромная
7 мин
4 мин
1-комн. кв
71.2
м2
1 этаж из 25
354 704 р.
Цена за м2: 5 461 р.
137 314 $
1 979 $/м2
Октябрьский район, пр-т Мира
Аэродромная
7 мин
4 мин
4-комн. кв
69.4
м2
1 этаж из 25
324 891 р.
Цена за м2: 5 525 р.
138 930 $
2 002 $/м2
Октябрьский район, пр-т Мира
Аэродромная
7 мин
4 мин
1-комн. кв
69.4
м2
1 этаж из 25
320 880 р.
Цена за м2: 5 461 р.
137 314 $
1 979 $/м2
Октябрьский район, пр-т Мира
Аэродромная
7 мин
4 мин
1-комн. кв
69.4
м2
1 этаж из 25
354 704 р.
Цена за м2: 5 461 р.
137 314 $
1 979 $/м2
Октябрьский район, пр-т Мира
Аэродромная
7 мин
4 мин
4-комн. кв
69.4
м2
1 этаж из 25
336 488 р.
Цена за м2: 5 525 р.
138 129 $
2 002 $/м2
Октябрьский район, ул. Белградская
Аэродромная
8 мин
5 мин
4-комн. кв
69
м2
1 этаж из 25
342 784 р.
Цена за м2: 5 461 р.
140 876 $
1 979 $/м2
Октябрьский район, пр-т Мира
Аэродромная
7 мин
4 мин
4-комн. кв
71.2
м2
1 этаж из 25