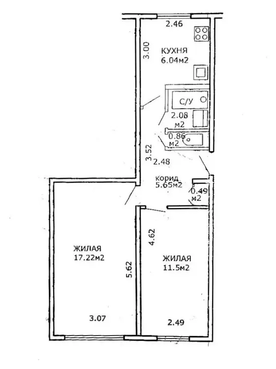
О квартире
Площадь
43.8 м2
общая
28.7 м2
жилая
6 м2
кухня
Санузел
раздельный
О доме
Этаж
1 из 5
Материал стен
Панельный
Год постройки
1966
Описание
Мираваль — Агент
год на сайте
Условия сделки:продажа
Показать почту
Пожаловаться на объявление
Агентство недвижимости
"Мираваль"
УНП: 193749806 Лицензия: выдана 18 мая 2024 г
Договор №: 15/1 от 2026-02-10








































