Подать БЕСПЛАТНО

Продажа 2-комнатной квартиры в Минске, ул. Цвирко, д. 82

г. Минск, ул. Цвирко, 82
Показать на карте
Советский район
410 423 р.
Цена за м2: 9 970 р.
Код объекта: 1210799
2 комнаты
42.3 м2
3 этаж из 7
Обновлено: 18.11.2025
410 423 р.
Цена за м2: 9 970 р.
Предложить свою цену

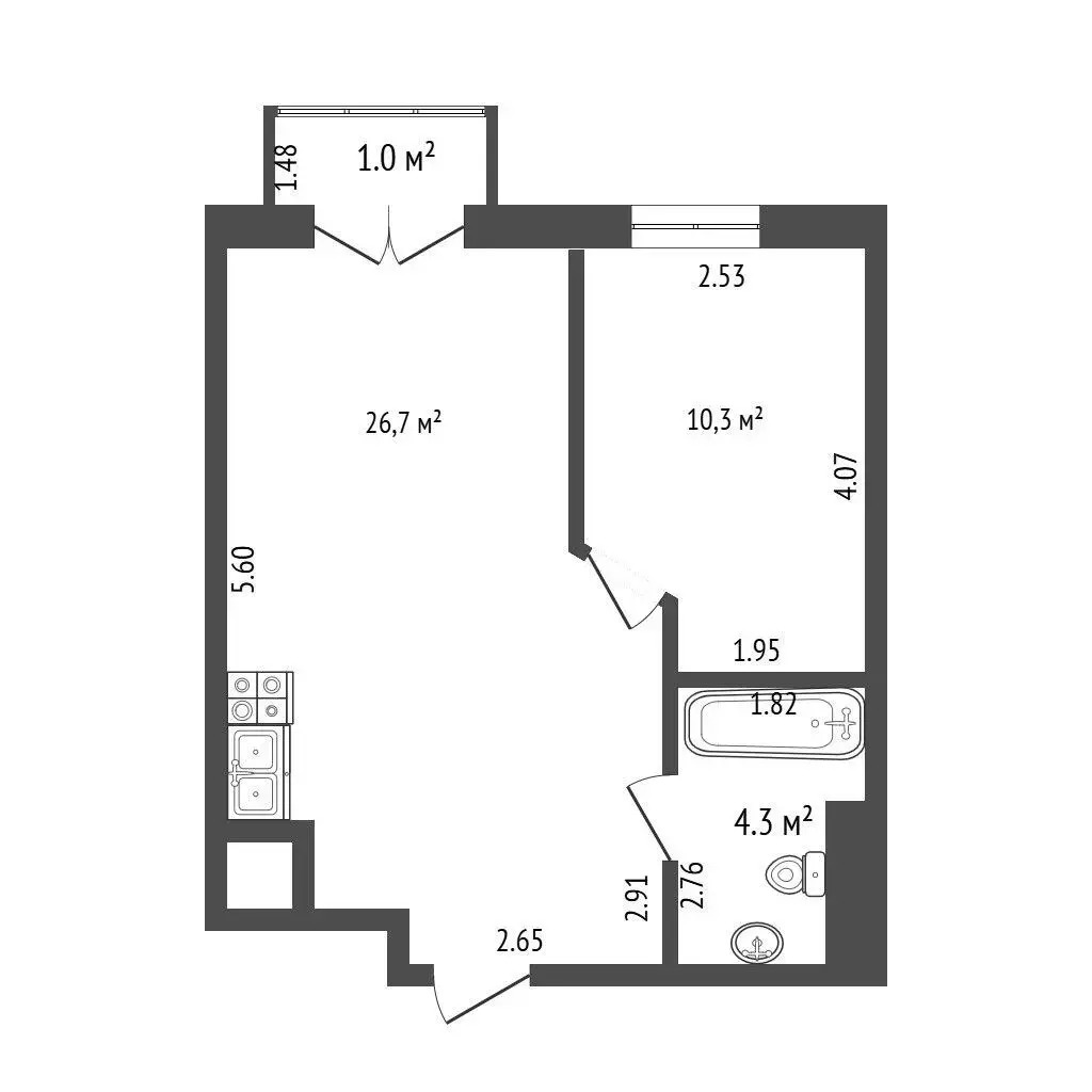
О квартире

Площадь
42.3 м2
общая
41.3 м2
жилая
Санузел
совмещенный
Балкон
Балкон
Тип ремонта
Хороший

О доме

Этаж
3 из 7
Год постройки
2024

Описание

Стильная двухкомнатная квартира с идеальной аурой в ЖК Северный Берег

Идеальное предложение! Подходит как для жизни, так и для инвестиции!

Продаётся стильная квартира в готовом доме Айвилэйн. Пространство, где сочетаются комфорт, современный дизайн и престижный район. Полностью готова к проживанию.

О квартире:

• Современная планировка: кухня-гостиная, оборудованная всей необходимой техникой и мебелью, с выходом на лоджию

• Отдельная спальня с встроенным шкафом и большим местом для хранения

Панорамные окна

• Площадь 42,3 м2 (СНБ) + кладовая 4.3 м2 

• Комфортный 3 этаж из 7

• Высота потолков: 2,7 м

• Санузел: совмещенный, теплый пол

• Вся встроенная мебель изготовлена по индивидуальному заказу

• Вместительные встроенные шкафы в гостиной и спальне

• Металлическая входная дверь

Дом и инфраструктура:

• ЖК «Северный Берег» — современная застройка на берегу Цнянского водохранилища

• Для наслаждения природой, активного отдыха и пеших прогулок рядом Lakeside Парк

• Магазины, кофейни, аптеки, детские площадки, велодорожки и активно развивающееся инфраструктура

• Residential Club (клуб жильцов) — более 800 м2 приватного пространства: тренажёрный зал, кинотеатр,2 финские сауны с современными раздевалками, переговорная, коворкинг-зона, лаунж-зона, бильярдная

• Просторное дизайнерское лобби, лапомойкой и колясочной

• Видеонаблюдение, Face ID, видеодомофон

• Подземная система сбора мусора

• Удобный выезд на МКАД и в центр города

Условия продажи:

- Чистая продажа - ключи в день сделки

- Рассмотрим любой вид оплаты!

- Бесплатная консультация по ипотеке в 5 крупнейших банках РБ!

  Звоните прямо сейчас, чтобы договориться о просмотре!

Эта квартира создана для тех, кто ценит стиль, комфорт и качество жизни.

 

ООО «ЭТАЖИ юнайтед»

УНП: 193673318

Договор 2456/1 от 12.11.2025

Лицензия на оказание риэлтерских услуг №02240/460 МЮ РБ от 03.04.2023

АлексейАгент
2 года на сайте
Условия сделки:продажа
Показать почту
Пожаловаться на объявление
Агентство недвижимости
ООО «ЭТАЖИ юнайтед»

Местоположение

г. Минск, ул. Цвирко, 82
Советский район
Опубликовано: 18.11.2025

Возможно, вам будет интересно

Похожие объекты

На этой улицеВ этом домеВ этом районе
413 253 р.
Цена за м2: 7 325 р.
Советский район, ул. Цвирко
2-комн. кв
56.4
49.4
м2
3 этаж из 7
500 999 р.
Цена за м2: 8 576 р.
Советский район, ул. Цвирко
2-комн. кв
58.4
44.2
м2
1 этаж из 7
563 270 р.
Цена за м2: 10 111 р.
Советский район, ул. Цвирко
2-комн. кв
55.7
49.4
м2
3 этаж из 7
467 033 р.
Цена за м2: 11 336 р.
Советский район, ул. Цвирко
2-комн. кв
41.2
36.8
м2
4 этаж из 7
1 129 370 р.
Цена за м2: 7 652 р.
Советский район, ул. Кольцова
4-комн. кв
147.6
79.9
14.4 м2
9 этаж из 10
959 540 р.
Цена за м2: 5 681 р.
Советский район, пер. Никитина 2-й
4-комн. кв
168.9
84.45
50.7 м2
2 этаж из 3
763 952 р.
Цена за м2: 4 871 р.
Советский район, пер. Кольцова 4-й
3-комн. кв
154
67.5
16.4 м2
3 этаж из 3