Подать БЕСПЛАТНО

Купить 2-комнатную квартиру в Минске, ул. Игоря Лученка, д. 15

г. Минск, ул. Игоря Лученка, 15
Показать на карте
Октябрьский район
Аэродромная
3 мин
264 049 р.
Цена за м2: 6 996 р.
Код объекта: 1225764
2 комнаты
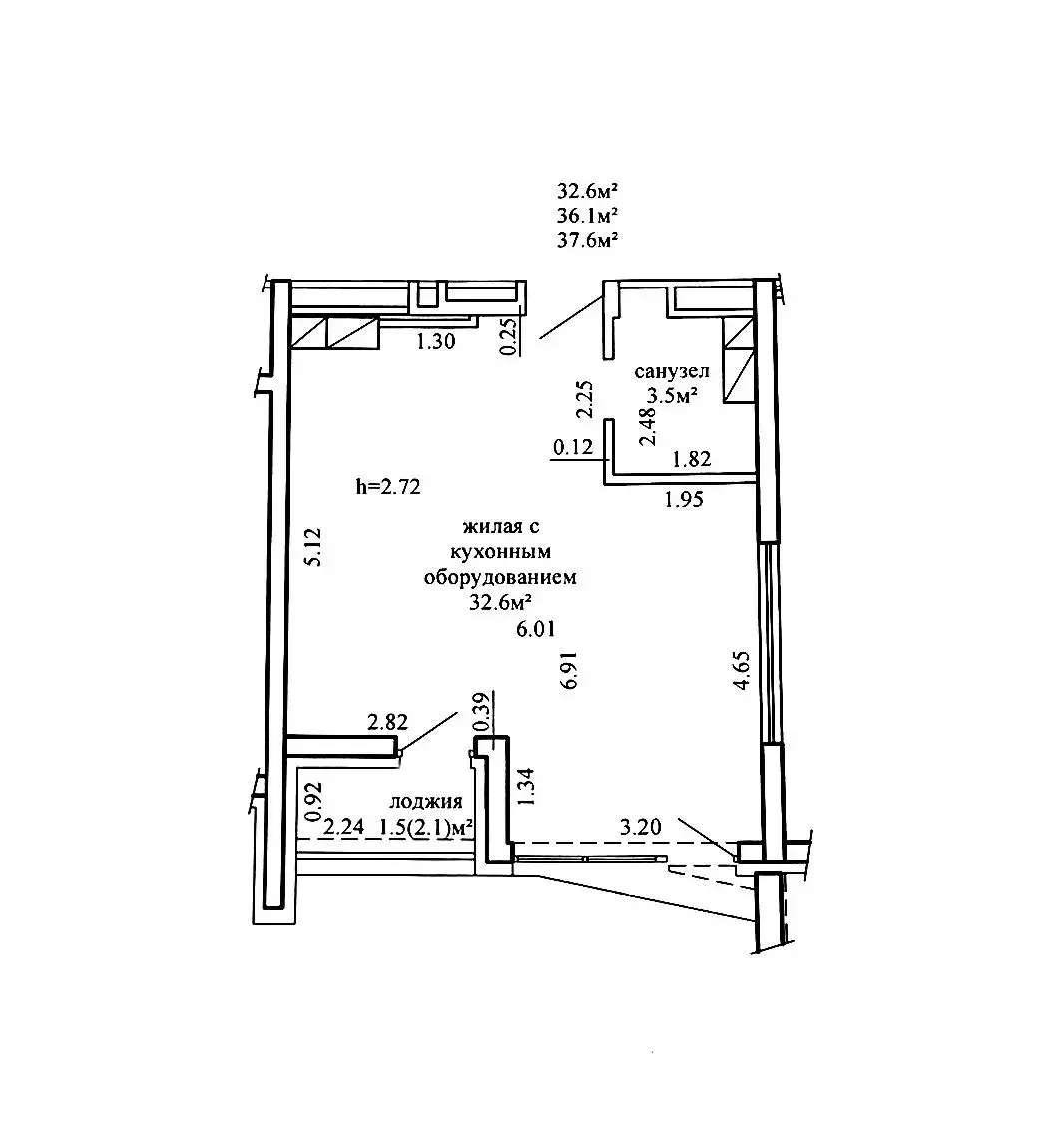
36.1 м2
21 этаж из 25
Обновлено: 28.01.2026
264 049 р.
Цена за м2: 6 996 р.
Предложить свою цену

О квартире

Площадь
36.1 м2
общая
32.6 м2
жилая
Санузел
совмещенный
Балкон
Лоджия
Тип ремонта
Без отделки

О доме

Этаж
21 из 25
Год постройки
2025

Описание

В продаже видовая квартира в  доме Бухарест по адресу ул.Лученка,15  
Площадь 37,6м2 по СНБ

Квартира свободной планировки на 21 этаже из 25.
Высота потолка 2.7 метров. Окна ПВХ ,юго-западная сторона. Есть балкон и лоджия.

Дом 2025 года постройки. Рядом с домом метро Аэродромная, а также международный финансовый центр.

В доме есть лобби, лапомойка, колясочная,3 лифта(грузовой)
Во дворе есть площадки для детей и для занятия спортом.

Развитая инфраструктура района: различные магазины, кафе, рестораны, аптеки, банки.

Открылись две поликлиники (взрослая и детская). Школы (с бассейном) и детские сады.
Сам квартал Центральная Европа расположен в центральной части ЖК.
Рядом с домом остановка общественного транспорта. Удобный выезд на второе транспортное кольцо, а также в центр.
 

Общая площадь указана по СНБ.

Лицензия: 02240/483 МЮ РБ, 18.05.2024

МиравальАгент
год на сайте
Условия сделки:продажа
Показать почту
Пожаловаться на объявление
Агентство недвижимости
"Мираваль"

Местоположение

г. Минск, ул. Игоря Лученка, 15
Октябрьский район
Опубликовано: 28.01.2026

Возможно, вам будет интересно

Похожие объекты

На этой улицеВ этом домеВ этом районе
250 798 р.
Цена за м2: 6 129 р.
Октябрьский район, ул. Игоря Лученка
Аэродромная
5 мин
1-комн. кв
46.6
м2
1 этаж из 25
370 039 р.
Цена за м2: 6 398 р.
Октябрьский район, ул. Игоря Лученка
Аэродромная
6 мин
3-комн. кв
65.7
м2
1 этаж из 10
394 257 р.
Цена за м2: 6 398 р.
Октябрьский район, ул. Игоря Лученка
Аэродромная
6 мин
3-комн. кв
70
м2
1 этаж из 10
258 309 р.
Цена за м2: 7 401 р.
Октябрьский район, ул. Игоря Лученка
Аэродромная
3 мин
2-комн. кв
34.9
30.3
м2
15 этаж из 25
381 723 р.
Цена за м2: 12 642 р.
Октябрьский район, ул. Игоря Лученка
Ковальская слобода
17 мин
9 мин
2-комн. кв
61.3
51.1
м2
16 этаж из 25
401 814 р.
Цена за м2: 5 765 р.
Октябрьский район, ул. Игоря Лученка
Аэродромная
3 мин
1-комн. кв
69.7
64.1
м2
17 этаж из 25
320 048 р.
Цена за м2: 6 398 р.
Октябрьский район, ул. Николы Теслы
Аэродромная
8 мин
5 мин
3-комн. кв
56.8
м2
1 этаж из 25
401 185 р.
Цена за м2: 6 398 р.
Октябрьский район, ул. Николы Теслы
Аэродромная
8 мин
5 мин
4-комн. кв
71.2
м2
1 этаж из 25
380 928 р.
Цена за м2: 5 859 р.
Октябрьский район, ул. Михаила Савицкого
Аэродромная
13 мин
7 мин
3-комн. кв
74.2
м2
1 этаж из 24