Подать БЕСПЛАТНО

Продажа 2-комнатной квартиры в Минске, ул. Кальварийская, д. 48

г. Минск, ул. Кальварийская, 48
Показать на карте
Фрунзенский район
Молодежная
9 мин
5 мин
274 129 р.
Цена за м2: 6 630 р.
Код объекта: 1227018
2 комнаты
40.2 м2
5 этаж из 5
Обновлено: 03.02.2026
274 129 р.
Цена за м2: 6 630 р.
Предложить свою цену

О квартире

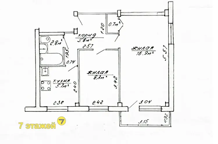
Площадь
40.2 м2
общая
25.2 м2
жилая
5.7 м2
кухня
Отдельных комнат
2 комнаты
Санузел
совмещенный
Балкон
Балкон
Тип ремонта
Требуется ремонт

О доме

Этаж
5 из 5
Материал стен
Панельный
Год постройки
1966

Описание

Продается двухкомнатная квартира общей площадью 40,2 м², расположенная по адресу: ул.Кальварийская, 48, в самом центре города. Преимущества расположения: Квартира находится в центре города, что обеспечивает удобный доступ к развитой инфраструктуре. В шаговой доступности находятся станции метро «Молодежная» и «Немига», парк «Победы», набережная Свислочи с ресторанами, бутиками, салонами, велодорожки для активного отдыха, ТЦ "Корона" и ТЦ "Галерея" а также школы и детские сады. Описание квартиры: Изолированные комнаты: одна — 16,2 м² с двумя окнами и балконом, вторая — 8,3 м². Чистый подъезд и хорошие соседи. что обеспечит комфортное проживание. Прекрасный вид на ЖК Каскад и зелёный двор. Эта квартира — отличная инвестиция в недвижимость благодаря своему расположению и перспективам аренды. Не упустите возможность стать владельцем этого замечательного объекта в центре города! Звоните для получения дополнительной информации и записи на просмотр. Окажем помощь в продаже вашего объекта для покупки! Ответим на все интересующие вопросы, согласуем удобное время показа! Консультация и помощь в подборе кредита! Полное юридическое сопровождение сделки гарантируем!
АгентАгент
9 лет на сайте
Условия сделки:Чистая продажа
Показать почту
Пожаловаться на объявление
Агентство недвижимости
7 этажей

Местоположение

г. Минск, ул. Кальварийская, 48
Фрунзенский район
Опубликовано: 03.02.2026

Возможно, вам будет интересно

Похожие объекты

На этой улицеВ этом районе
914 748 р.
Цена за м2: 9 157 р.
Центральный район, ул. Кальварийская
Фрунзенская
7 мин
4 мин
3-комн. кв
99.9
49.1
12.8 м2
24 этаж из 32
1 416 384 р.
Цена за м2: 14 079 р.
Центральный район, ул. Кальварийская
Фрунзенская
7 мин
4 мин
3-комн. кв
100.6
93.7
м2
32 этаж из 32
1 475 400 р.
Цена за м2: 14 302 р.
Центральный район, ул. Кальварийская
Фрунзенская
7 мин
4 мин
2-комн. кв
101.1
49.9
12.8 м2
21 этаж из 32
634 127 р.
Цена за м2: 7 465 р.
Фрунзенский район, ул. Скрыганова
Молодежная
5 мин
3-комн. кв
100.8
55.2
18 м2
9 этаж из 12
501 636 р.
Цена за м2: 6 779 р.
Фрунзенский район, ул. Скрыганова
Молодежная
6 мин
2-комн. кв
74
39.1
14.3 м2
12 этаж из 13
294 785 р.
Цена за м2: 5 724 р.
Фрунзенский район, ул. Притыцкого
Пушкинская
4 мин
2-комн. кв
51.5
33.93
7.99 м2
7 этаж из 9