Подать БЕСПЛАТНО

Купить 2-комнатную квартиру в Минске, ул. Карбышева, д. 7

г. Минск, ул. Карбышева, 7
Показать на карте
Первомайский район
270 768 р.
Цена за м2: 4 889 р.
Код объекта: 1214718
2 комнаты
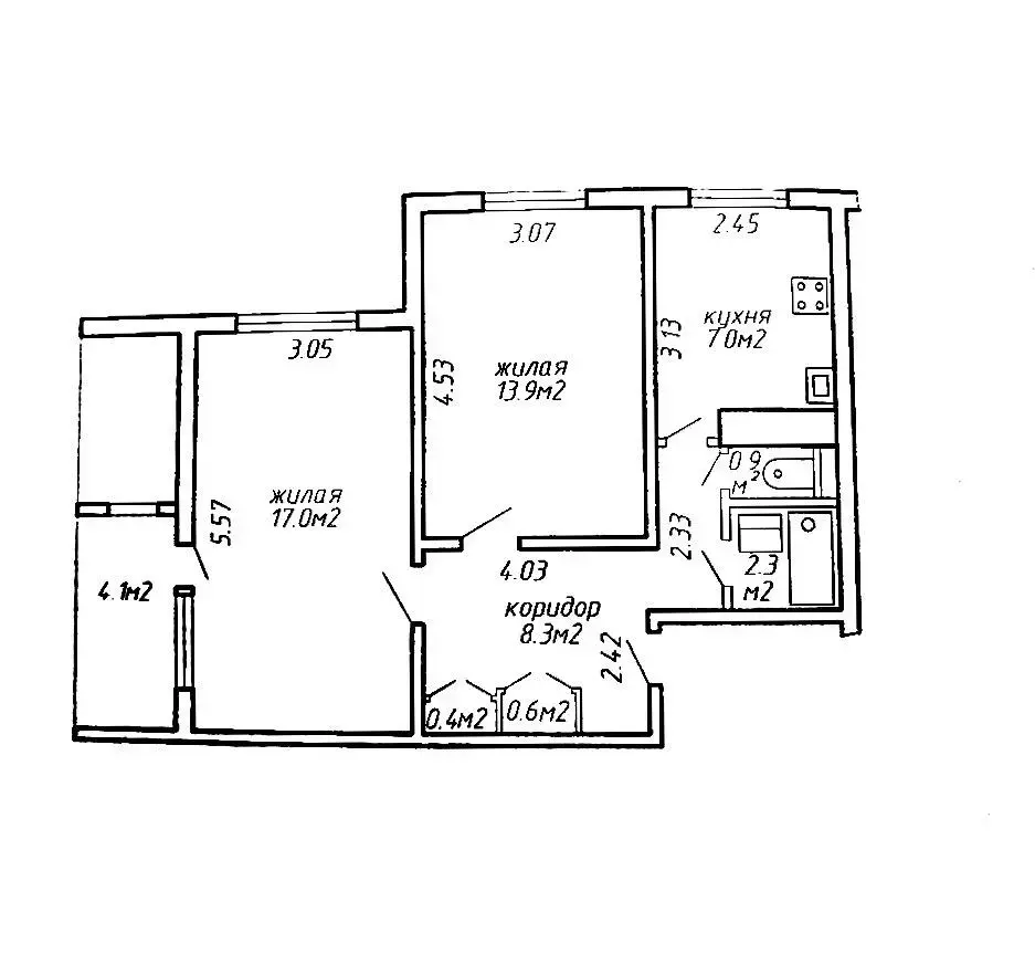
54.5 м2
3 этаж из 9
Обновлено: 10.12.2025
270 768 р.
Цена за м2: 4 889 р.
Предложить свою цену

О квартире

Площадь
54.5 м2
общая
30.9 м2
жилая
7 м2
кухня
Санузел
раздельный
Балкон
Лоджия
Тип ремонта
Хороший

О доме

Этаж
3 из 9
Материал стен
Панельный
Год постройки
1977

Описание

Продается просторная 2-х комнатная квартира с улучшенной планировкой по ул.Карбышева,7(Зеленый луг).

Очень хорошее расположение дома. Площадь квартиры по СНБ – 54,5м2; жилые комнаты 13,9м2 и 17,0м2.; двойная лоджия.

В доме в 2023 году был капитальный ремонт с заменой коммуникаций.
Окна квартиры выходят на зеленую зону - тишина, уют, никаких шумных дорог. В подъезде - выполнен ремонт, установлены новые почтовые ящики и новый лифт.

Район с отличной инфраструктурой. Школы, детские сады, поликлиники, магазины, кафе, бытовые службы - всё в шаговой доступности. Излюбленное место отдыха минчан - Цнянское водохранилище.

Быстрый выезд на МКАД, в перспективе появиться станция метро «Зеленый луг».
Отличный вариант как для собственного проживания, так и для сдачи в аренду. Не упустите возможность приобрести личное пространство в хорошем районе Минска!

Звоните и приходите на просмотр.

Лицензия: №02240/362 от 31.07.2018, Министерство юстиции РБ

Фаттория ПлюсАгент
7 лет на сайте
Условия сделки:продажа
Показать почту
Пожаловаться на объявление
Агентство недвижимости
Фаттория Плюс

Местоположение

г. Минск, ул. Карбышева, 7
Первомайский район
Опубликовано: 10.12.2025

Возможно, вам будет интересно

Похожие объекты

На этой улицеВ этом домеВ этом районе
315 513 р.
Цена за м2: 4 411 р.
Первомайский район, ул. Карбышева
3-комн. кв
71.5
45.9
7.1 м2
5 этаж из 9

Фотографии отсутствуют

329 855 р.
Цена за м2: 5 246 р.
Первомайский район, ул. Карбышева
3-комн. кв
62.6
43.16
7.05 м2
6 этаж из 9
358 538 р.
Цена за м2: 5 542 р.
Первомайский район, ул. Карбышева
3-комн. кв
64.7
43
7.1 м2
7 этаж из 9

Фотографии отсутствуют

329 855 р.
Цена за м2: 5 246 р.
Первомайский район, ул. Карбышева
3-комн. кв
62.6
43.16
7.05 м2
6 этаж из 9
358 538 р.
Цена за м2: 5 542 р.
Первомайский район, ул. Карбышева
3-комн. кв
64.7
43
7.1 м2
7 этаж из 9
1 144 452 р.
Цена за м2: 7 754 р.
Советский район, ул. Кольцова
4-комн. кв
147.6
79.9
14.4 м2
9 этаж из 10
972 354 р.
Цена за м2: 5 757 р.
Советский район, пер. Никитина 2-й
4-комн. кв
168.9
84.45
50.7 м2
2 этаж из 3
774 154 р.
Цена за м2: 4 936 р.
Советский район, пер. Кольцова 4-й
3-комн. кв
154
67.5
16.4 м2
3 этаж из 3