О квартире
Площадь
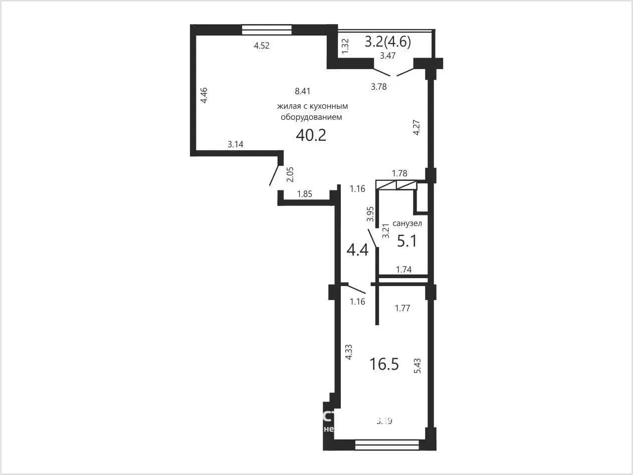
69.4 м2
общая
56.7 м2
жилая
1 м2
кухня
Отдельных комнат
2 комнаты
Санузел
совмещенный
Балкон
Лоджия
Тип ремонта
С отделкой
О доме
Этаж
6 из 20
Материал стен
Каркасно-блочный
Год постройки
2018
Описание
Современная двухкомнатная квартира в многофункциональном комплексе Маяк Минска.Двухкомнатная квартира по адресу ул. Туровского, д. 24 (Первомайский район)Материал стен: каркасно-блочныйГод постройки: 2018Этаж: 6/20Площадь по СНБ: 69.4 Общая площадь: 66.2 Жилая площадь: 56.7Высота потолка: 2.74Мебель, бытовая техника и предметы интерьера - всё остается новому собственнику. Из квартиры открывается великолепный вид на главный бульвар Маяка Минска.Современный и стильный ремонт. Напольное покрытие - кварцвинил. Стены и потолок выровнены и покрашены. Установлены оригинальные светильники и кондиционер Daikin. Оптимальное пространство выделено под кухню-гостиную. Встроенная кухонная мебель с системой хранения и бытовой техникой: варочная панель, духовой шкаф, вытяжка, посудомоечная машина и холодильник. Продуманные места хранения. В спальне вместительный шкаф-гардеробная. В санузле есть все необходимое сантехническое оборудование, а также мебель для ванной комнаты и бойлер. Входная металлическая дверь.В подъезде стильно оформленное лобби. Установлены лифты компании OTIS. Подключена система видеонаблюдения подъезда и придомовой территории. Отлично развита инфраструктура микрорайона: рядом детские сады, новая общеобразовательная школа, торговые и бизнес-центры, объекты сервисного обслуживания и досуга. Шаговая доступность до остановок общественного транспорта и станции метро Восток. Dana Mall — самый крупный торгово-развлекательный центр в Беларуси и Национальная библиотека расположены всего в пяти минутах ходьбы.Удобный выезд на МКАД, хорошее транспортное сообщение со всеми районами столицы и пригородом. 10 минут пешком до станции метро Восток. Развитая транспортная сеть: автобусы, троллейбусы, маршрутные такси.Дом расположен в живописном месте - у набережной канала Слепянской водной системы. Зелёная зона, многочисленные места для прогулок и отдыха. Прямая продажаРасширенные консультации по покупке, продаже и обмену вашей недвижимости можно получить в офисе Центральном, расположенном в Бизнес-центре Kiroff по адресу Минск, улица Кирова, 8. 2 этажСмотреть подробнее ТОП-20 ДЕШЕВЫХ КВАРТИРБАЗА ПОКУПАТЕЛЕЙ – узнайте, кто готов купить вашу квартиру прямо сейчас!КАЛЬКУЛЯТОР СТОИМОСТИ ЖИЛЬЯ – онлайн- расчет стоимости вашей квартиры!ПЕРЕЕЗЖАЕМ В НОВОСТРОЙКУ- программа обмена старого жилья на новое. 2 сделки в 1 день!ПАРТНЕР-КРЕДИТ сопровождение кредитования для покупки и обмена «под ключ»ВАШ ВАРИАНТ- проверка квартир перед покупкой и оформление сделки, если вы нашли объект самостоятельно. ООО "Твоя столица", УНП 101136973, лицензия №02240/15 от 17.02.05г.
Агент
10 лет на сайте
Показать почту
Пожаловаться на объявление
Агентство недвижимости
ТВОЯ СТОЛИЦА АГЕНТСТВО НЕДВИЖИМОСТИ
УНП: 101136973 Лицензия: от 17.02.2005 № 47
Договор №: 06.08.2025 №705/13












































