Подать БЕСПЛАТНО

Купить 2-комнатную квартиру в Минске, ул. Княгининская, д. 6

г. Минск, ул. Княгининская, 6
Показать на карте
Центральный район
604 844 р.
Цена за м2: 6 993 р.
Код объекта: 1232354
2 комнаты
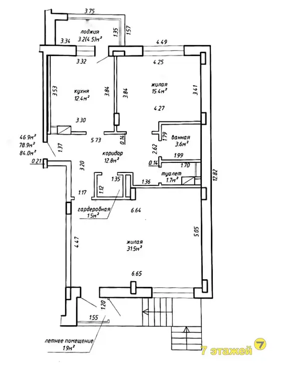
84 м2
1 этаж из 9
Обновлено: 04.03.2026
604 844 р.
Цена за м2: 6 993 р.
Предложить свою цену

О квартире

Площадь
84 м2
общая
46.9 м2
жилая
12.4 м2
кухня
Отдельных комнат
2 комнаты
Санузел
раздельный
Балкон
2 лоджии застеклены
Тип ремонта
С отделкой

О доме

Этаж
1 из 9
Материал стен
Каркасно-блочный
Год постройки
2021

Описание

Просторная и уютная 2-комнатная квартира. Планировка: 84/78,9/46,9/12,4 Квартира находится в современном и престижном жилом комплексе Променад. В экологически чистом районе Лебяжий, с удобным транспортным сообщением и развитой инфраструктурой, всего в нескольких шагах от водохранилища и парка Дрозды, а также ТЦ Арена-Сити. Ключевой особенностью этого жилья является стильный дизайнерский ремонт, выполненный с использованием высококачественных материалов и современных технологий. Так же в квартире есть личный выход на улицу и летнее помещение (1,9 кв.м.) Квартира меблирована и укомплектована всей необходимой техникой для комфортного проживания. В квартире также есть гардеробная (1,5 кв.м.) Окна квартиры выходят на обе стороны дома, есть застекленная лоджия с выходом из кухни. В непосредственной близости находятся магазины, школы и детские сады, что делает это место идеальным для семейной жизни. Звоните, согласуем удобное для Вас время просмотра, ответим на все интересующие вопросы!
АгентАгент
9 лет на сайте
Условия сделки:Чистая продажа
Показать почту
Пожаловаться на объявление
Агентство недвижимости
7 этажей

Местоположение

г. Минск, ул. Княгининская, 6
Центральный район
Опубликовано: 04.03.2026

Возможно, вам будет интересно

Похожие объекты

На этой улицеВ этом домеВ этом районе
1 239 798 р.
Цена за м2: 9 726 р.
Центральный район, ул. Княгининская
5-комн. кв
121.1
89.7
м2
8 этаж из 9
870 811 р.
Цена за м2: 10 281 р.
Центральный район, ул. Княгининская
3-комн. кв
84.7
71.6
м2
2 этаж из 10
693 106 р.
Цена за м2: 8 095 р.
Центральный район, ул. Княгининская
3-комн. кв
83.8
78.8
м2
1 этаж из 8
587 428 р.
Цена за м2: 7 294 р.
Центральный район, ул. Княгининская
2-комн. кв
78.9
46.9
12.4 м2
1 этаж из 9
1 343 115 р.
Цена за м2: 12 997 р.
Центральный район, ул. Ратомская
4-комн. кв
114.7
49.8
49.9 м2
6 этаж из 9
1 443 479 р.
Цена за м2: 9 599 р.
Центральный район, ул. Мястровская
4-комн. кв
143
76.8
17 м2
25 этаж из 25
1 623 545 р.
Цена за м2: 14 719 р.
Центральный район, пр-т Победителей
3-комн. кв
110.3
105.7
м2
20 этаж из 26