Подать БЕСПЛАТНО

ОБЪЕКТ В АРХИВЕ

Продажа 2-комнатной квартиры в Минске, ул. Лобанка, д. 62

г. Минск, ул. Лобанка, 62
Показать на карте
Фрунзенский район
Каменная горка
15 мин
8 мин
307 707 р.
Цена за м2: 5 765 р.
Код объекта: 1237442
2 комнаты
52.4 м2
5 этаж из 9
Обновлено: 07.04.2026
307 707 р.
Цена за м2: 5 765 р.
Предложить свою цену

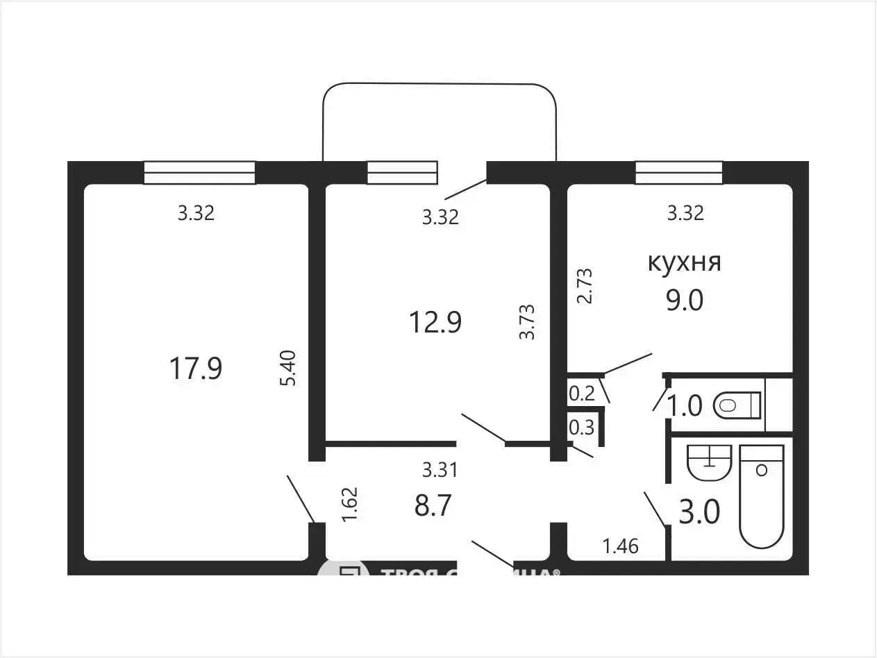
О квартире

Площадь
52.4 м2
общая
30.2 м2
жилая
9 м2
кухня
Отдельных комнат
2 комнаты
Санузел
раздельный
Балкон
Балкон
Тип ремонта
С отделкой

О доме

Этаж
5 из 9
Материал стен
Блок-комнаты
Год постройки
1993

Описание

Продается 2-комнатная квартира в Минске, Фрунзенский район, микрорайон Сухарево, по адресу: ул. Лобанка, 62.

Квартира расположена на 5 этаже 9-этажного дома 1993 года постройки.

Общая площадь по СНБ 53.4 составляет 52,4 м², жилая — 30,2 м², кухня — 9 м². Высота потолков — 2,50 м.

Квартира в хорошем жилом состоянии, выполнен качественный ремонт, что позволяет заехать и комфортно проживать без дополнительных вложений. Установлены стеклопакеты, металлическая входная дверь, приборы учета воды, домофон. Санузел раздельный, после свежего ремонта. Балкон застеклен и также отремонтирован, что создает дополнительное функциональное пространство.

Дом расположен в районе с развитой инфраструктурой: в шаговой доступности школа, детский сад, поликлиника, аптеки, магазины и объекты бытового обслуживания. Рядом зеленая зона для прогулок и отдыха.

Квартира отлично подойдет как для проживания, так и для инвестиции.

Смотреть подробнее Торг. Предложите свою цену. Последние поступления квартир.
ООО "Твоя столица", УНП 101136973, лицензия №02240/15 от 17.02.05г.
Агент
10 лет на сайте
Показать почту
Пожаловаться на объявление
Агентство недвижимости
ТВОЯ СТОЛИЦА АГЕНТСТВО НЕДВИЖИМОСТИ

Местоположение

г. Минск, ул. Лобанка, 62
Фрунзенский район
Опубликовано: 07.04.2026

Возможно, вам будет интересно

Похожие объекты

На этой улицеВ этом районе
395 220 р.
Цена за м2: 5 456 р.
Фрунзенский район, ул. Лобанка
3-комн. кв
68.3
43.4
8.8 м2
3 этаж из 9
505 317 р.
Цена за м2: 3 963 р.
Фрунзенский район, ул. Лобанка
3-комн. кв
127.5
82.9
11.6 м2
9 этаж из 12
281 735 р.
Цена за м2: 5 663 р.
Фрунзенский район, ул. Лобанка
Каменная горка
13 мин
7 мин
2-комн. кв
49.1
28.4
7.18 м2
5 этаж из 9
239 955 р.
Цена за м2: 3 769 р.
Фрунзенский район, ул. Воложинская
Каменная горка
10 мин
5 мин
3-комн. кв
60.9
43.3
9.3 м2
1 этаж из 1
388 445 р.
Цена за м2: 4 910 р.
Фрунзенский район, ул. Одинцова
Каменная горка
13 мин
7 мин
3-комн. кв
77.9
44.8
9.1 м2
1 этаж из 9
222 735 р.
Цена за м2: 6 532 р.
Фрунзенский район, пер. Академика Вышелесского
Каменная горка
15 мин
9 мин
1-комн. кв
34.1
17.7
9.1 м2
4 этаж из 5