О квартире
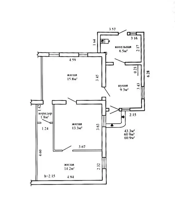
Площадь
60.9 м2
общая
43.3 м2
жилая
9.3 м2
кухня
Санузел
совмещенный
О доме
Этаж
1 из 1
Год постройки
1960
Описание
Александр — Агент
7 лет на сайте
Условия сделки:продажа
Показать почту
Пожаловаться на объявление
Агентство недвижимости
Фаттория Плюс
УНП: 193074485 Лицензия: от 31.07.2018 № 159
Договор №: 1606/1 от 2025-11-05
























