О квартире
Площадь
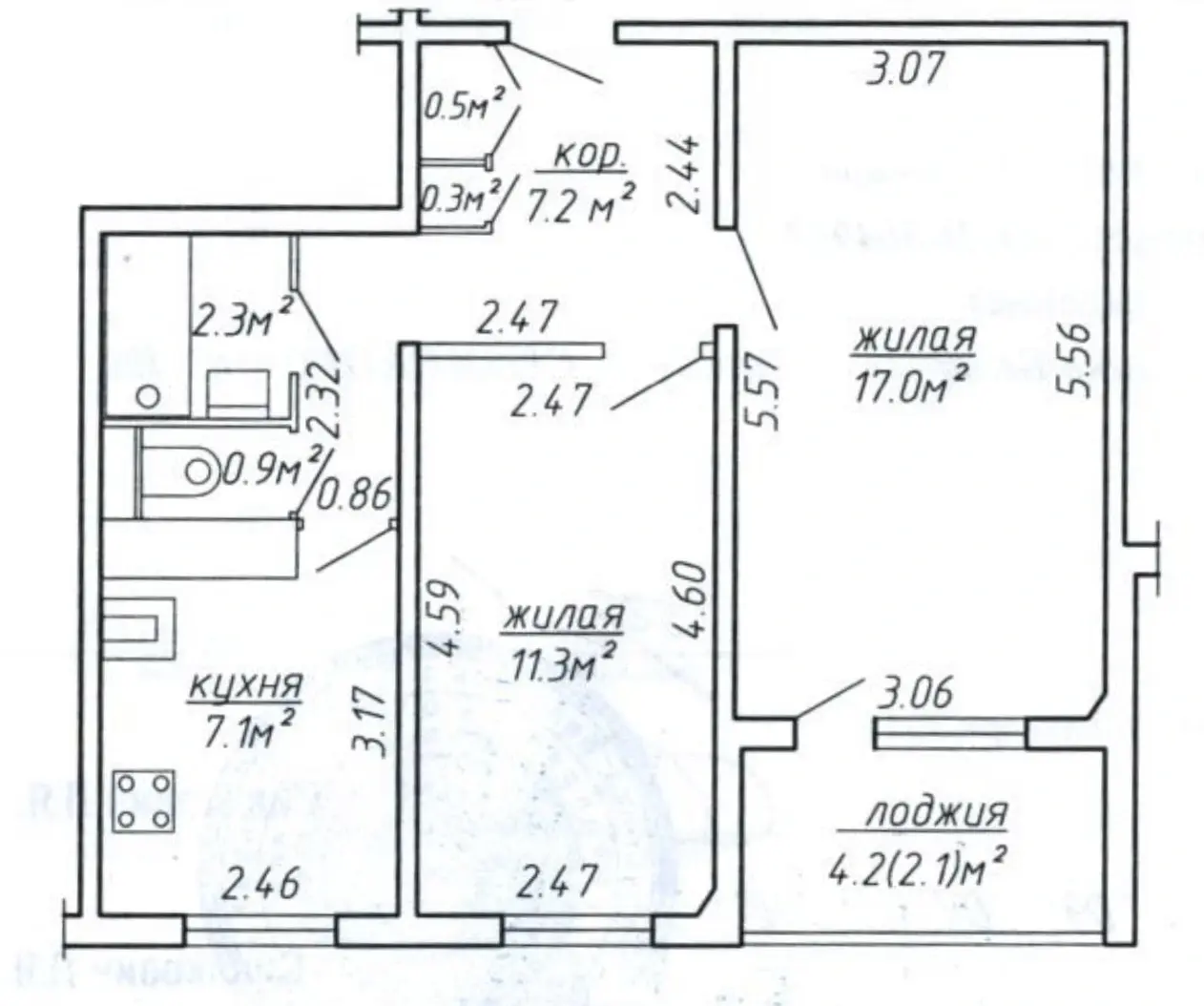
46.6 м2
общая
28.3 м2
жилая
7.1 м2
кухня
Отдельных комнат
2 комнаты
Санузел
Раздельный
Балкон
Лоджия
О доме
Этаж
5 из 9
Материал стен
Панельный
Год постройки
1992
Описание
Александр — Собственник
месяц на сайте
Условия сделки:Чистая продажа
Пожаловаться на объявление





































