О квартире
О доме
Описание
Просторная 3-комнатная квартира в каркасно-блочном доме, в шаговой доступности от ст.м. Малиновка.
Замечательное предложение для людей, ценящих качество, комфорт и уют.
Квартира расположена на 7-ом этаже 15-ти этажного дома.
Чистый, аккуратный подъезд, тамбур закрывается на ключ.
2 лифта.
Есть парковка для жильцов.
Благоустроенная придомовая территория под управлением ТС, ведется круглосуточное видеонаблюдение.
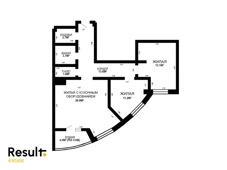
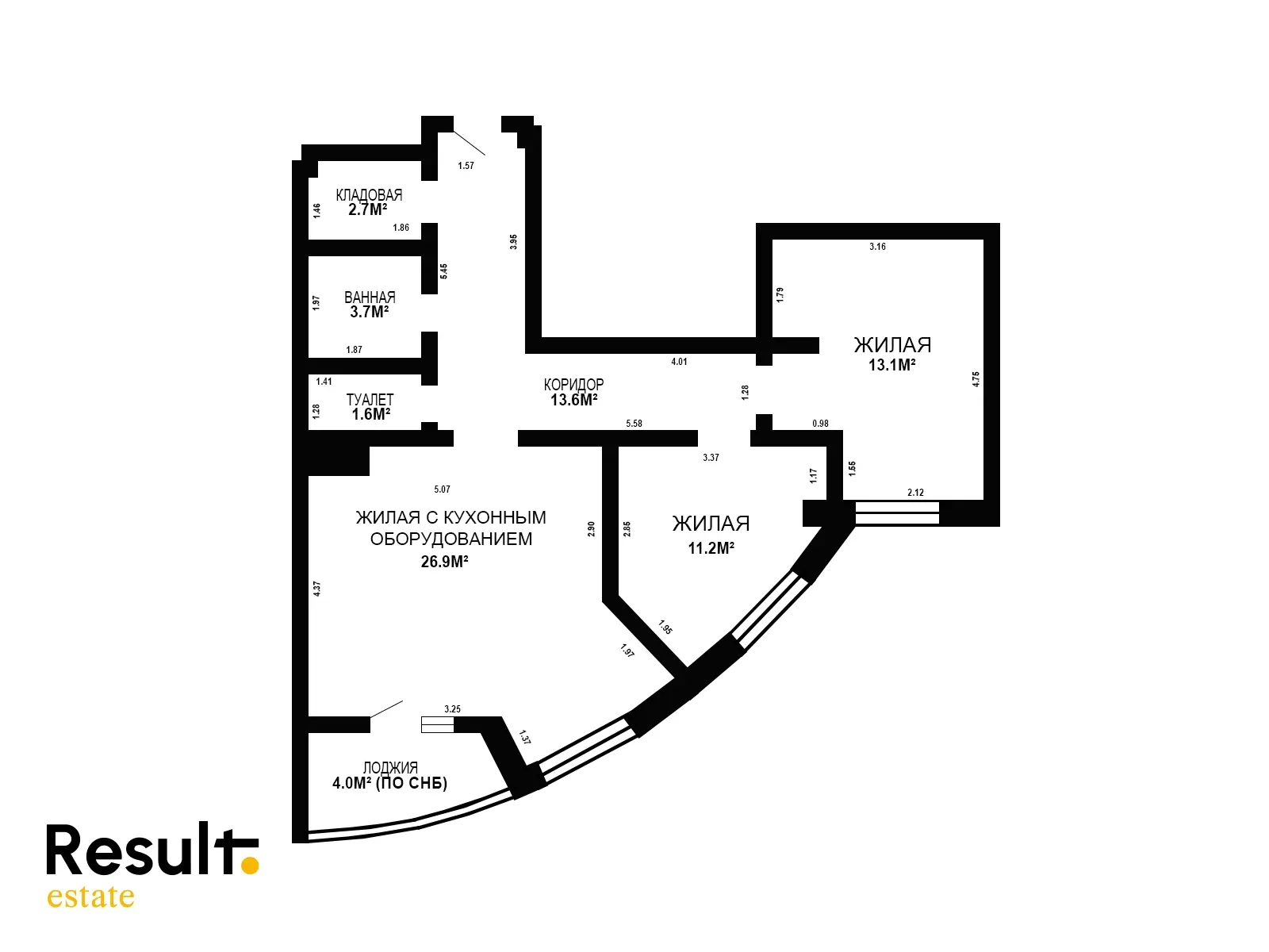
Просторная и функциональная планировка квартиры:
площадь по СНБ 76.8 кв.м;
общая площадь 72.8 кв.м;
две отдельные комнаты (спальни) - 13.1 кв.м. и 11.2 кв.м;
просторная и светлая гостиная 26.9 кв.м с лоджией;
раздельный санузел;
гардеробная 2.7 кв.м.
Металлическая входная дверь.
Качественные межкомнатные двери с магнитными замками.
Просторная гардеробная с удобной системой хранения.
Встроенный шкаф.
Двухкамерные энергоэффективные стеклопакеты, окна во двор.
Для комфорта в жаркие дни в кухне-гостинной установлен кондиционер Electrolux.
В отделке использованы качественные материалы европейских производителей.
Натяжной потолок в санузлах. В комнатах потолок выровнен и покрашен.
Напольное покрытие: ламинат и плитка.
Функциональная кухня со встроенной бытовой техникой - большой холодильник Bosch, духовой шкаф Gorenje, варочная панель Bosch, микроволновая печь Siemens, посудомоечная машина Siemens и вытяжка. В санузлах стиральная машина, установлен бойлер и фильтры по очистке воды.
Есть индивидуальные счётчики на тепло и воду.
Бонус для покупателя - остается мебель и бытовая техника.
Квартира готова к проживанию.
В шаговой доступности:
школы № 25 со школой робототехники и № 204 с бассейном (во дворе), гимназии № 174 и № 192, детские сады № 176 (во дворе) и № 264;
поликлиники – детская и взрослая;
магазины, торговые центры, медцентры, фитнес, развивающие центры, банки, кофейни, рестораны, салоны красоты и множество других удобств;
благоустроенный парк Павлова и природный заповедник Дубрава для прогулок.
Отличное транспортное сообщение: 7 минут пешком до станции метро Малиновка. Удобный выезд на МКАД.
Поможем продать Вашу недвижимость для покупки этой!
Result Estate — ваш надёжный партнёр на рынке недвижимости.
20 лет опыта наших агентов по недвижимости — это ваш ключ к идеальной сделке: глубокое знание рынка, эксклюзивные предложения, юридическая безопасность и индивидуальный подход. Мы экономим ваше время, деньги и нервы, помогая купить, продать недвижимость быстро, выгодно и с уверенностью в результате!
ООО «Результативная недвижимость», лицензия выдана Минюстом 26.09.2023 № 02240470, УНП 193703497
Связываясь с нами по данному объекту, Вы даете свое согласие на сбор и обработку персональных данных автоматически.










































