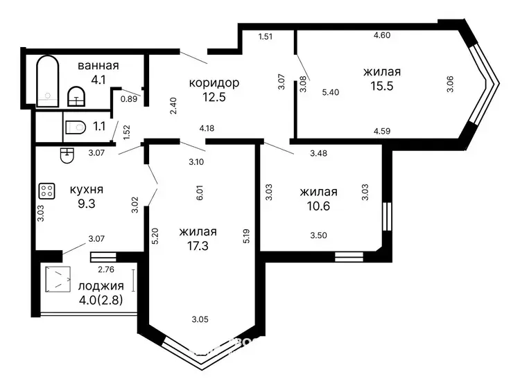
О квартире
О доме
Описание
Роскошная трехкомнатная квартира с уникальным ремонтом и панорамным видом на Лошицкий парк!
Не просто квартира, а готовая энциклопедия качественного ремонта и безупречного вкуса. Вам не придется ничего менять или докупать — просто заезжайте и наслаждайтесь жизнью в самом уютном районе Минска.
· Дом 2020 года постройки:
Современная планировка, новые инженерные системы, безопасность и комфорт, возможность приобретения или аренды места в подземном паркинге
· Уникальный дизайн-ремонт:
Авторский ремонт с использованием исключительно премиальных материалов. Каждая деталь продумана до мелочей. Стены, потолки, полы — все идеально ровное и качественное.
Во всей квартире: на полу – испанский керамогранит, турецкий ламинат высокого класса, стены -кухня/гостиная/коридор покрашены износостойкой краской Kaparol; немецкие обои на стенах в комнатах; потолки выполнены из гипсокартона, окна – деревянные стеклопакеты и деревянные подоконники, установлены межкомнатные двери Юркас и фарнитура к ним Италия. Продумана эргономика мест хранения – много полок и встроенной мебели для идеального порядока. Во всей квартире установлено большое количество качественных и долговечных Итальянских светильников, что делает каждую комнату светлой и уютной.
Кухня: большая, светлая. Встроенный гарнитур с практичными ламинированными фасадами полностью оснащен фурнитурой Blum, грамотно продуманы рабочие и обеденная зоны, скинали – итальянский керамогранит. Холодильник, варочная панель, духовой шкаф, микроволновка - Bosch, посудомоечная машина – Maunfeld. Кухня переходит в просторную гостиную с огромным удобным дорогим диваном и телевизором для уютных семейных вечеров. Вся техника и мебель остается будущим владельцам.
Спальня: Стильная и уютная с гардеробной комнатой. Большая кровать с премиальным матрасом - Vegas, телевизор. Здесь же выход на застекленную лоджию, где на полу уложена плитка, есть места для хранения, отдыха, а также установлен натяжной потолок с освещением.
Из окон кухни гостиной и спальни открывается чудный вид на дикую природу Лошицкого парка и реку.
Детская для подростка с большим шкафом, удобной кроватью и рабочей зоной.
Просторная ванная комната: облицована итальянской плиткой, установлена инсталяция, а так же качественная немецкая сантехника Kaizer.
В коридоре большой встроенный распашной шкаф, установлена надежная металлическая входная дверь премиум качества. Здесь же расположена кладовая-постирочная комната с встроенными шкафами, стиральной машиной LG и сушильной машиной BOSCH, а также сердце электрики квартиры - автоматика входной группы: каждый автомат на каждую комнату и на все электробытовые приборы.
Инфраструктура: Район с развитой инфраструктурой — все необходимое в шаговой доступности: детские сады, школы, поликлиники, супермаркеты, кафе. И главное — прямой выход к зеленому массиву Лошицкого парка и реку.
Это предложение для тех, кто ценит качество, комфорт и безупречный стиль.
Звоните, чтобы назначить просмотр и оценить все преимущества этого жилья лично!
Работаем с различными видами кредитования:
- Система строительных сбережений от Беларусбанка;
-Семейный капитал;
-Ипотечное кредитование и все виды кредитования на покупку недвижимости.
А также:
-Подыщем выгодный для Вас банк;
-Поможем продать вашу недвижимость для покупки этой.
Напишите нам в удобный для Вас мессенджер:
Viber | Telegram | WhatsApp
Ответим на Ваши вопросы, предоставим всю необходимую информацию.
ООО «Артель Недвижимость»
УНП 193820882
Лицензия Министерства Юстиции №48250000081913 от 06.03.2025 г.
Договор № 204/2 25.09.2025










































