Подать БЕСПЛАТНО

ОБЪЕКТ В АРХИВЕ

Продажа 3-комнатной квартиры в Минске, ул. Черниговская, д. 12

г. Минск, ул. Черниговская, 12
Показать на карте
Октябрьский район
Аэродромная
13 мин
7 мин
332 020 р.
Цена за м2: 3 000 р.
110 000 $
1 087 $/м2
Код объекта: 1202063
3 комнаты
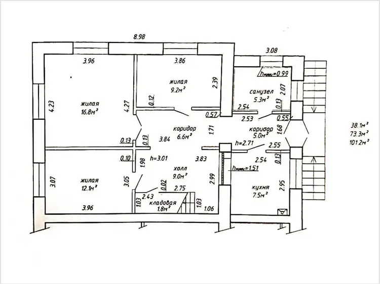
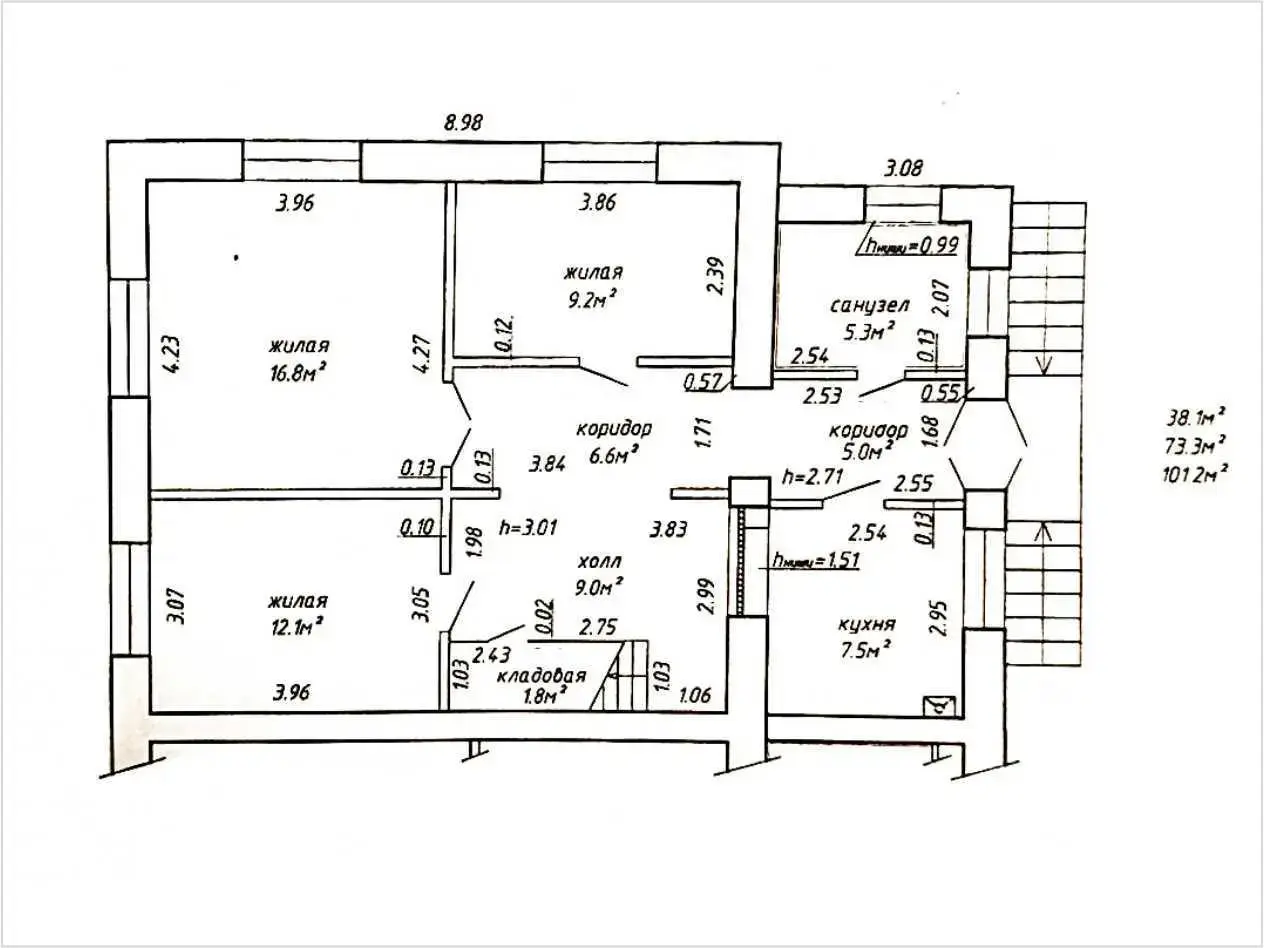
101.2 м2
1 этаж из 2
Обновлено: 03.10.2025
332 020 р.
Цена за м2: 3 000 р.
110 000 $
1 087 $/м2
Предложить свою цену

О квартире

Площадь
101.2 м2
общая
38.1 м2
жилая
7.5 м2
кухня
Отдельных комнат
3 комнаты
Санузел
совмещенный
Балкон
н
Тип ремонта
С отделкой

О доме

Этаж
1 из 2
Материал стен
Кирпичный
Год постройки
1975

Описание

Уютный уголок города идеально подойдет для комфортной жизни!

Квартира находится на первом этаже двухэтажного кирпичного дома 1975 года постройки, что гарантирует надежность и хорошую шумоизоляцию. Общая площадь составляет внушительные 101.2 кв.м, из которых 38.1 кв.м приходится на жилую зону, а кухня имеет площадь 7.5 кв.м. Вы оцените отличное состояние ремонта: квартира полностью готова к заселению и не требует дополнительных вложений. Установлена металлическая дверь и современные стеклопакеты, что обеспечивает тепло и тишину. Санузел совмещенный.

Квартира продается с бытовой техникой, что позволит вам сразу же наслаждаться всеми удобствами. Дополнительным преимуществом является наличие подвала для хранения вещей.

Расположение просто замечательное – вы находитесь в центре города, но при этом окружены зеленой зоной. Территория дома огорожена, что обеспечивает дополнительную безопасность и уют. Для вашего автомобиля предусмотрена стоянка.

Не упустите возможность стать обладателем этой прекрасной квартиры в историческом кирпичном доме! Отличное сочетание комфорта, инфраструктуры и местоположения.

Просьба от продавца - осмотр объекта только с агентом объекта!

Звоните, чтобы узнать подробности и договориться о просмотре.

Смотреть подробнее Торг. Предложите свою цену. Последние поступления квартир.
ООО "Твоя столица", УНП 101136973, лицензия №02240/15 от 17.02.05г.
Агентство
10 лет на сайте
Показать почту
Пожаловаться на объявление
Агентство недвижимости
ТВОЯ СТОЛИЦА АГЕНТСТВО НЕДВИЖИМОСТИ

Местоположение

г. Минск, ул. Черниговская, 12
Октябрьский район
Опубликовано: 03.10.2025

Возможно, вам будет интересно

Похожие объекты

В этом районе
342 930 р.
Цена за м2: 5 461 р.
140 876 $
1 979 $/м2
Октябрьский район, ул. Лейтенанта Кижеватова
Аэродромная
9 мин
5 мин
4-комн. кв
71.2
м2
1 этаж из 25
279 193 р.
Цена за м2: 5 557 р.
114 569 $
2 014 $/м2
Октябрьский район, ул. Лейтенанта Кижеватова
Аэродромная
9 мин
5 мин
3-комн. кв
56.9
м2
1 этаж из 25
330 573 р.
Цена за м2: 5 686 р.
141 114 $
2 060 $/м2
Октябрьский район, ул. Лейтенанта Кижеватова
Аэродромная
10 мин
6 мин
1-комн. кв
68.5
м2
1 этаж из 20