Подать БЕСПЛАТНО

Купить 3-комнатную квартиру в Минске, ул. Кирилла Туровского, д. 14

г. Минск, ул. Кирилла Туровского, 14
Показать на карте
Первомайский район
Восток
6 мин
533 133 р.
Цена за м2: 4 263 р.
Код объекта: 1141746
3 комнаты
151 м2
2 этаж из 20
Обновлено: 06.03.2025
533 133 р.
Цена за м2: 4 263 р.
Предложить свою цену

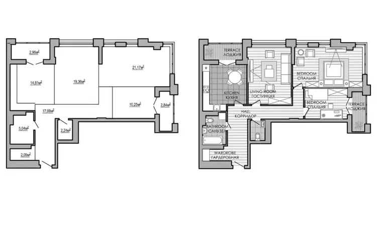
О квартире

Площадь
151 м2
общая
14.8 м2
жилая
50.9 м2
кухня
Отдельных комнат
3 комнаты
Санузел
Раздельный
Балкон
Лоджия
Тип ремонта
С отделкой

О доме

Этаж
2 из 20
Материал стен
Каркасно-блочный
Год постройки
2020

Описание

Продаётся 3-комнатаня квартира в ЖК "Маяк Минска"! Квартира свободной планировки с выполненной черновой отделкой: стяжка полов, заведена электрика и сантехника, установлены хорошие стеклопакеты, а также радиаторы отопления.

Дом обслуживается товариществом собственников, подъезд и придомовая территория постоянно ухожены. В лобби находится место консьержа, установлены грузовые и пассажирские лифты, видеонаблюдение по периметру, а также в подъезде дома; место для парковки автомобиля можно найти на открытой парковке у дома, либо докупить машино-место в крытом паркинге (стоимость от 6000 тыс.евро.).

В стилобате дома размещен двухэтажный торговый комплекс, имеющий в своем составе рестораны, кафе и оздоровительный центр, а также подземный паркинг на 50 машиномест с местами для хранения велосипедов. Это очень удобно для автовладельцев: доступ к машинам возможен как с улицы, так и непосредственно из жилого дома – в паркинг можно спуститься на лифте.

Район обладает уникальной инфраструктурой и местоположением. Всё необходимое находится в шаговой доступности:

- 6 детских садиков, а также множество развивающих кружков и развлекательных центров для детей

- Построена новая школа №61 с лучшими преподавателями, школа №137 имени П.М. Машерова и средняя школа № 121

- Отличное транспортное сообщение. 3 минуты пешком до ст.м. Восток и 5 остановок общественного транспорта

- В непосредственной близости от дома расположен торгово-развлекательный центр Dana Mall площадью 200 000 кв. м.

- В ближайшем окружении находятся парк Писателей, Национальная библиотека Беларуси, несколько супермаркетов, фитнес-клубов, спа-центров с салонами красоты, многочисленные рестораны, кафе - всё необходимое для комфортной жизни и отдыха.

Дом расположен в экологически чистой, спокойной, зелёной зоне.

Приглашаем всех желающих на просмотр!

При желании агентство недвижимости поможет купить эту квартиру в кредит, найдёт покупателя на вашу недвижимость, чтобы приобрести эту, а также обеспечит юридическое сопровождение и безопасность сделки.

Бесплатные консультации по вопросам недвижимости!

ООО "Оператор недвижимости "Перспектива24-Развитие", УНП 191441618, лицензия на оказание юридических (риэлтерских) услуг №02240/225, договор на оказание риэлтерских услуг №31/7 от 14.02.2025 договор с застройщиком ООО «Дана Астра»

Борис КарпухинАгент
9 лет на сайте
Условия сделки:Чистая продажа
Показать почту
Пожаловаться на объявление
Агентство недвижимости
ООО "Оператор недвижимости Перспектива24-Развитие"

Местоположение

г. Минск, ул. Кирилла Туровского, 14
Первомайский район
Опубликовано: 06.03.2025

Возможно, вам будет интересно

Похожие объекты

На этой улицеВ этом домеВ этом районе
550 183 р.
Цена за м2: 7 758 р.
Первомайский район, ул. Кирилла Туровского
Восток
6 мин
3-комн. кв
70.9
67.6
м2
6 этаж из 10
874 643 р.
Цена за м2: 3 366 р.
Первомайский район, ул. Кирилла Туровского
Восток
5 мин
4-комн. кв
189.1
64.37
20.77 м2
2 этаж из 11
576 954 р.
Цена за м2: 5 038 р.
Первомайский район, ул. Кирилла Туровского
Восток
7 мин
4 мин
6-комн. кв
165.9
м2
2 этаж из 25
755 349 р.
Цена за м2: 4 999 р.
Первомайский район, ул. Кирилла Туровского
Восток
6 мин
3-комн. кв
151.1
м2
2 этаж из 20
761 285 р.
Цена за м2: 5 038 р.
Первомайский район, ул. Кирилла Туровского
Восток
6 мин
3-комн. кв
151.1
75.3
35 м2
2 этаж из 18
761 285 р.
Цена за м2: 5 038 р.
Первомайский район, ул. Кирилла Туровского
Восток
6 мин
3-комн. кв
151.1
70
м2
2 этаж из 20
651 533 р.
Цена за м2: 6 370 р.
Первомайский район, ул. Петра Мстиславца
Восток
5 мин
4-комн. кв
135.9
100
20 м2
3 этаж из 25
728 228 р.
Цена за м2: 5 062 р.
Первомайский район, ул. Петра Мстиславца
Восток
5 мин
4-комн. кв
122.9
100
20 м2
3 этаж из 20
868 710 р.
Цена за м2: 5 563 р.
Партизанский район, ул. Парниковая
Восток
24 мин
13 мин
4-комн. кв
190.5
129.2
11.8 м2
3 этаж из 4