О квартире
О доме
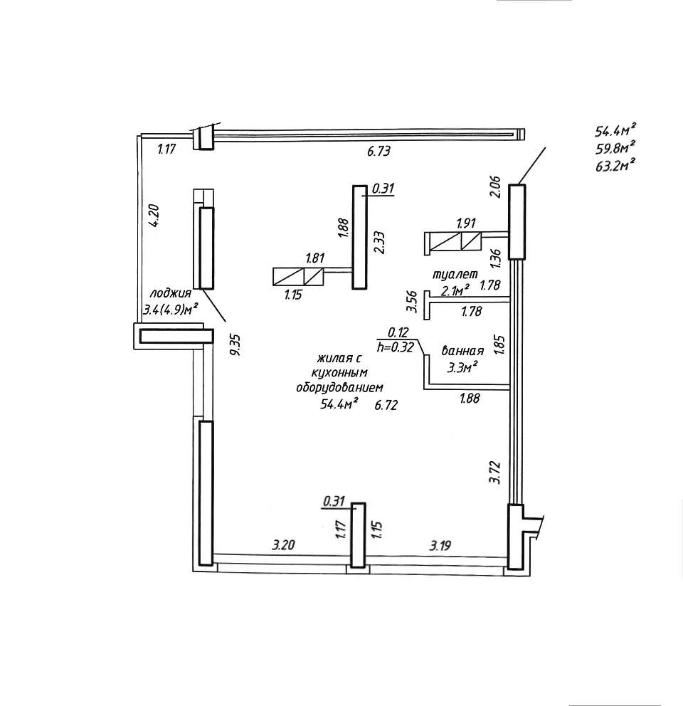
Описание
Адрес: Савицкого 4, Минск-Мир.
Количество комнат: 3 раздельных: 2. Наиболее актуальный формат «евротрешки» с общей зоной кухня-зал и двумя изолированными комнатами.
Тип планировки: индивидуальный проект.
Метраж квартиры: общ 63.2 кухня-гостиная 23 м2, жилая 25.2 м2
Подъезд: презентабельное лобби с местом для консьержа на первом этаже и санитарной комнатой. 3 бесшумных скоростных лифта Otis.
Этажность: 18 этаж 25-этажного каркасно-блочного дома.
Год постройки: 2021. Все ремонты уже сделаны и соседи не будут беспокоить вас шумом.
Высота потолков: 2.7 м.
Состояние квартиры: полный, свежий и современный ремонт. Вся мебель и техника остается новым владельцам.
На стенах обои, полоток натяжной, напольное покрытие ламинат и плитка с подогревом.
Жилые комнаты:
Спальня: панорамные окна в пол, с установленной большой кроватью с подъемным механизмом и ортопедическим матрасом. Имеется шкаф-купе и комод для хранения вещей.
Детская-кабинет: идеальное пространство для проживния Вашего ребенка или отличная зона для размещения рабочего кабинета. На полу ламинат, установлен шкаф для хранения вещей, рабочее место и имеется вывод для установки кондиционера и выход на просторную лоджию с прекрасным видом на весь город.
Кухня-гостиная: визитная карточка нашей квартиры, для сбора всей семьи и гостей. Полноценная обеденная зона и кухонная мебель с качественной фурнитурой и материалами.
На кухне имеется вся необходимая техника: посудомоечная машина, духовой шкаф, индукционная панель, духовой шкаф, микроволновая печь и холодильник.
В гостиной зоне расположен диван для вашего отдыха и имеется место для размещения ТВ зоны и вывод для кондиционера.
Лоджия: идеальное места для отдыха с панорамным видом.
На полу ламинат, на стенах окрашенная декоративная штукатурка и имеются места для отдыха.
Коридор и прихожая: установлена качественная металлическая дверь, на полу плитка с подогревом. Грамотно организованы зоны для хранения: шкаф-купе и шкаф-витрина.
Сан.узел: раздельный. В современной плитке и теплым полом. В ванной комнате имеются места для хранения мелочей, установлена большая ванна, умывальник, стиральная машина. В туалете установлена инсталляция, гигиенический душ и умывальник.
Инфраструктура:
Минск Мир – город в городе со всеми удобствами и коммуникациями.
Дворы уже обустроены, установлены детские и спортивные площадки, парковки все в асфальте, как и подъездные пути. Около дома множество кофеен и локальных магазинов, супермаркет, пункты выдачи, в трех минутах езды ТЦ Outleto и Корона Сити – кому что по душе.
В микрорайоне построено несколько детских садов и школ с приоритетным поступлением для жильцов.
Станция метро Аэродромная и ТЦ «АвиаМолл» находятся не далеко от дома. В шаговой доступности остановки общественного транспорта с регулярным сообщением в центр города и за его пределы.
Резюме: вложение денег или жизнь – это лучшее решение. А вживую ещё лучше! Приходите.



































