О квартире
Площадь
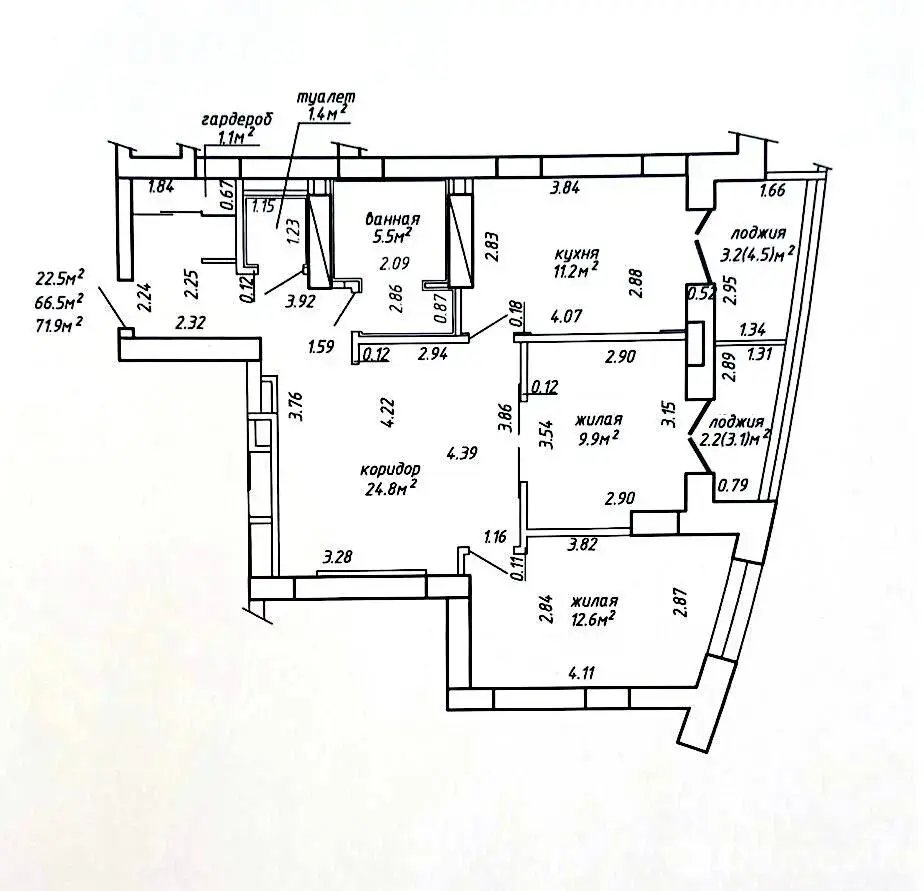
71.9 м2
общая
22.5 м2
жилая
11.2 м2
кухня
Балкон
Лоджия
Тип ремонта
Хороший
О доме
Этаж
21 из 26
Год постройки
2011
Описание
3- комнатная квартира, ул. Неманская, 6.
С отделкой, панорамным видом. Рядом с метро!
21эт/26 кб СНБ 71.9 м2 общая 66.5м2/жилая 22.5м2/кухня 11.2м2
Дом/ повышенной комфортности
- материал стен: каркасно-блочный
- год постройки: 2011
- с подземным паркингом
- современный, чистый подъезд
- четыре скоростных лифта
- консьерж
- видеонаблюдение
- на этаже: 8 квартир, закрытый тамбур
- обслуживается: Товариществом собственников
- расположение: до метро «Каменная горка» - 5 минут пешком; удобный заезд во двор; максимально развитая инфраструктура, общественный транспорт. Рядом с парком. Сквер возле дома
Квартира
- этаж:21
- панорамный вид на город, восточная сторона
- согласованная планировка (гостиная в проходной зоне- 25 м2/две отдельные спальные комнаты: 12.6 м2 и 10 м2 с лоджией 3 м2/ кухня 12.6 м2 с лоджией 4.5 м2)
- туалет/ ванная: раздельные
- лоджии: утеплены, застеклены стеклопакетами
- высота потолков: 2.76 м
- установлены счетчики отопления (низкие коммунальные платежи)
- ремонт: современный. Входная дверь - металлическая; окна – пластиковые/двойной стеклопакет; качественная электропроводка, акустическая разводка. На стенах в прихожей, гостиной, кухне выполнена декоративная штукатурка; стены в комнатах покраска; потолки гипсокартон; на полу: ламинат, плитка с подогревом; двери деревянные/ шпонированные, раздвижная стеклянная перегородка; встроенная кухня с техникой Bosch, фурнитурой Blum; система очистки воды; установлен бойлер, кондиционер; выполнено разно-уровневое освещение; качественная мебель, диван «Фурман».
Светлая, теплая квартира, в современном, аккуратном состоянии, не требует дополнительных вложений!
Инфраструктура
- метро: «Каменная Горка» (5минут пешком)
- остановка общественного транспорта: рядом с домом (маршрутка, автобус, троллейбус)
- покупки:
-ТЦ «GreenCity», Строительный гипермаркет «Материк», «Mile»; гипермаркет «Корона», «Еврооопт»
- зеленая зона отдыха: Парк имени Уго Чавеса, напротив дома расположен сквер
- спорт: ФОК «Мандарин», спортивный клуб А.Лесуна с бассейном; ФОК «Олимпик», «Эволюция»
- образование:
- детский сад №№ 192, 39
-гимназия №№ 43,39; школа № 42
- колледж бизнеса и права
- поликлиника: № 26- взрослая; № 5- детская, медицинский центр Лодэ
- разное: кафе, салоны красоты, аптеки, банки, почта
- удобный выезд на: МКАД, ул. Притыцкого
Чистая продажа!
Показ в удобное для Вас время!
Лицензия: 02240/483 МЮ РБ, 18.05.2024
Татьяна — Агент
год на сайте
Условия сделки:продажа
Показать почту
Пожаловаться на объявление
Агентство недвижимости
"Мираваль"
УНП: 193749806 Лицензия: выдана 18 мая 2024 г
Договор №: 80/1 от 2026-04-27










































