Подать БЕСПЛАТНО

Продажа 3-комнатной квартиры в Минске, ул. Нововиленская, д. 61

г. Минск, ул. Нововиленская, 61
Показать на карте
Центральный район
489 379 р.
Цена за м2: 6 949 р.
Код объекта: 1210864
3 комнаты
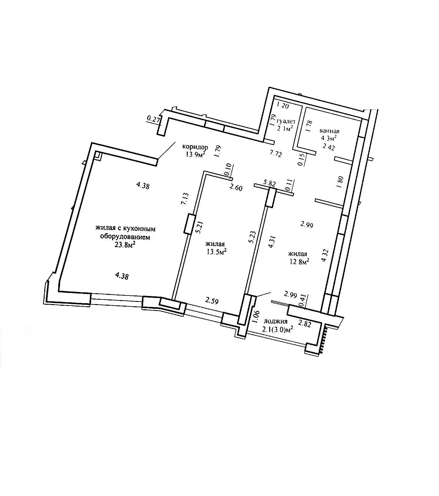
72.5 м2
2 этаж из 9
Обновлено: 19.11.2025
489 379 р.
Цена за м2: 6 949 р.
Предложить свою цену

О квартире

Площадь
72.5 м2
общая
50.1 м2
жилая
Санузел
раздельный
Балкон
Лоджия
Тип ремонта
Без отделки

О доме

Этаж
2 из 9
Год постройки
2024

Описание

Просторная трехкомнатная квартира в ЖК ЛЕВАДА площадью по СНБ 72,5 м2 по адресу: Нововиленская, 61

  •                 Квартира в черновой отделке — идеальный вариант для тех, кто хочет сделать ремонт для себя, без переплат за чужие решения
  •                 Просторная и рациональная планировка. Две отдельные комнаты и просторная кухня-гостиная 23,8 м2
  •                 Комфортный 2 этаж
  •                 Вид из окон на сторону реки Свислочь. Строящиеся напротив дома не более 6 этажей
  •                 Престижный ЖК класса КОМФОРТ на берегу реки Свислочь в Центральном районе
  • Непосредственная близость дома №61 к набережной реки и прогулочной зоне Парка Победы
  •                 Каркасно-блочный дом 2025 года постройки         
  •                 Дополнительно предлагаем приобрести парковочное место, просматриваемое из окон Вашей квартиры по цене Застройщика                     

Для тех, кто еще не знаком с ПРЕСТИЖНЫМ ЖК ЛЕВАДА: 

ЖК Левада — современный Престижный жилой комплекс, представляющий малоэтажную застройку (от 4 до 9 этажей), состоящую из 25 жилых домов, созданных в едином стиле в г. Минске на живописном берегу реки Свислочь, расположенной вдоль улицы Нововиленская. В непосредственной близости от парка Победы и пляжа Комсомольского озера. ТЦ «Замок находится в 20 минутах ходьбы. Территория комплекса оформлена в едином ландшафтном дизайне. Прекрасно оборудованные дворы с детскими и спортивными площадками, с закрытым доступом, предназначенные только для жильцов. Сквозные подъезды. Круглосуточное видеонаблюдение. Магазин «Соседи» Милые кофейни и респектабельные соседи.

Итог: Не упустите квартиру Вашей мечты! Ждем Вас на просмотр!

Лицензия: 02240/446 от 11.07.2022, Министерство юстиции РБ

ЕленаАгент
3 года на сайте
Условия сделки:продажа
Показать почту
Пожаловаться на объявление
Агентство недвижимости
"АН Фаттория"

Местоположение

г. Минск, ул. Нововиленская, 61
Центральный район
Опубликовано: 19.11.2025

Возможно, вам будет интересно

Похожие объекты

На этой улицеВ этом домеВ этом районе
745 583 р.
Цена за м2: 6 613 р.
Центральный район, ул. Нововиленская
4-комн. кв
109.7
60.8
12.4 м2
10 этаж из 11
546 665 р.
Цена за м2: 9 540 р.
Центральный район, ул. Нововиленская
3-комн. кв
60.6
47.5
12 м2
9 этаж из 9
607 118 р.
Цена за м2: 9 504 р.
Центральный район, ул. Нововиленская
2-комн. кв
63
41.6
м2
3 этаж из 9
662 101 р.
Цена за м2: 11 515 р.
Центральный район, ул. Нововиленская
2-комн. кв
57.5
54.1
м2
6 этаж из 9
561 347 р.
Цена за м2: 8 054 р.
Центральный район, ул. Нововиленская
3-комн. кв
69.7
51.1
м2
6 этаж из 9
777 249 р.
Цена за м2: 7 850 р.
Левада
Для семьи с детьми
Удобная инфраструктура
От собственника
Агентам не беспокоить
Без посредников
Центральный район, ул. Нововиленская
4-комн. кв
99
76.8
м2
3 этаж из 9
676 495 р.
Цена за м2: 9 032 р.
Центральный район, Старовиленский тр-т
Немига
25 мин
14 мин
2-комн. кв
74.9
37.6
18 м2
3 этаж из 8
457 713 р.
Цена за м2: 6 834 р.
Центральный район, ул. Стадионная
2-комн. кв
69.5
38.8
15 м2
5 этаж из 13
374 231 р.
Цена за м2: 4 638 р.
Центральный район, Долгиновский тр-т
4-комн. кв
86.9
56.2
8.8 м2
6 этаж из 8