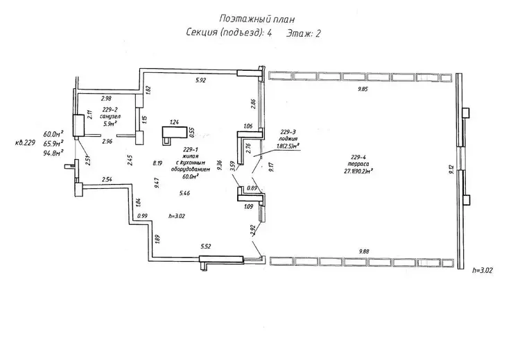
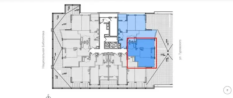
О квартире
Площадь
94.3 м2
общая
60 м2
жилая
Санузел
совмещенный
Балкон
Балкон
Тип ремонта
Без отделки
О доме
Этаж
2 из 25
Год постройки
2015
Описание
Ирина — Агент
2 года на сайте
Условия сделки:продажа
Показать почту
Пожаловаться на объявление
Агентство недвижимости
ООО «ЭТАЖИ юнайтед»
УНП: 193673318 Лицензия: Министерство юстиции РБ, 2023-04-03
Договор №: 1253/1 от 2024-01-05











































