Подать БЕСПЛАТНО

ОБЪЕКТ В АРХИВЕ

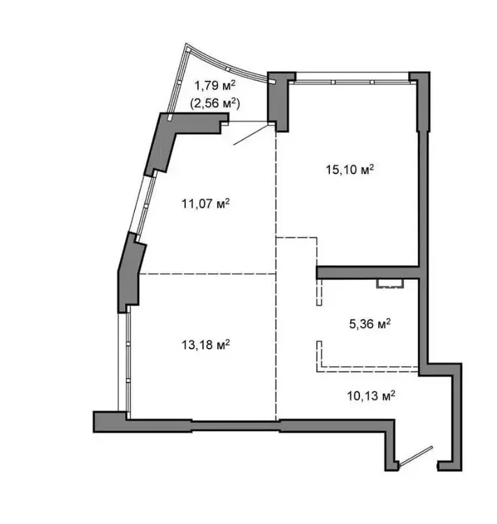
Продажа 4-комнатной квартиры в Минске, пр-т Мира, д. 18

г. Минск, пр-т Мира, 18
Показать на карте
Октябрьский район
Аэродромная
7 мин
4 мин
325 741 р.
Цена за м2: 5 859 р.
Код объекта: 1230318
4 комнаты
55.6 м2
1 этаж из 25
Обновлено: 18.02.2026
325 741 р.
Цена за м2: 5 859 р.
Предложить свою цену

О квартире

Площадь
55.6 м2
общая
48 м2
жилая
Балкон
Лоджия
Тип ремонта
Без отделки

О доме

Этаж
1 из 25
Год постройки
2021

Описание

Работаем напрямую от застройщика по партнерской программе (без комиссий)!!!

Цены и наличие на 16.02.2026 г.

Продадим Вашу квартиру для покупки этой!

Стать владельцем квартиры в Minsk World можно:

1. За собственные средства

2.  Кредит от 6%.

3.  В рассрочку без справок и поручителей (только паспорт!)

     Все дома в комплексе каркасно-блочные.

    Скоростные бесшумные лифты импортного производства. Почти во всех домах есть панорамный лифт.

    Во всех домах просторные фойе с высокими потолками, гостевыми санузлами и стойками для консьержа.

    Высота потолков 2,7 м, а в некоторых домах на верхних этажах 3 м.

Инфраструктура комплекса «Минск Мир»:

   Комплекс «Минск Мир» расположен максимально близко к географическому центру Минска!

    Две станции метро: «Ковальская Слобода», «Аэродромная».

    Отличное транспортное сообщение! Быстро и легко можно добраться как до центра города, так и до МКАД. Широкие улицы между кварталами.

    В каждом квартале современные школа или сад с бассейнами и современным оснащением

    Спортивные площадки, вело парковки и благоустроенные дворы.

    Зеленая парковая зона, международный финансовый центр и крупнейший торговый центр Авиа Молл в центре комплекса в пешей доступности будет вся  инфраструктура Minsk World – взрослая и детская поликлиника, медицинский центр, кафе и магазины, парковки, спортивные залы и фитнес-центры.

Поможем продать Вашу квартиру. Подберем лучший вариант!

ООО «ЭТАЖИ юнайтед»

УНП: 193673318

Договор 53/1 от 05.01.2024

Лицензия на оказание риэлтерских услуг №02240/460 МЮ РБ от 03.04.2023 Совершая звонок, вы даете согласие на обработку персональных данных

Ознакомиться с политикой обработки персональных данных ООО «ЭТАЖИ юнайтед» можно здесь.

ИринаАгент
2 года на сайте
Условия сделки:продажа
Показать почту
Пожаловаться на объявление
Агентство недвижимости
ООО «ЭТАЖИ юнайтед»

Местоположение

г. Минск, пр-т Мира, 18
Октябрьский район
Опубликовано: 18.02.2026

Возможно, вам будет интересно

Похожие объекты

На этой улицеВ этом домеВ этом районе
376 025 р.
Цена за м2: 5 757 р.
Октябрьский район, пр-т Мира
Аэродромная
7 мин
4 мин
4-комн. кв
69.4
м2
1 этаж из 25
287 133 р.
Цена за м2: 5 859 р.
Октябрьский район, пр-т Мира
Аэродромная
7 мин
4 мин
3-комн. кв
55.2
м2
1 этаж из 25
363 388 р.
Цена за м2: 5 757 р.
Октябрьский район, пр-т Мира
Аэродромная
7 мин
4 мин
4-комн. кв
71.2
м2
1 этаж из 25
376 025 р.
Цена за м2: 5 757 р.
Октябрьский район, пр-т Мира
Аэродромная
7 мин
4 мин
4-комн. кв
69.4
м2
1 этаж из 25
287 133 р.
Цена за м2: 5 859 р.
Октябрьский район, пр-т Мира
Аэродромная
7 мин
4 мин
3-комн. кв
55.2
м2
1 этаж из 25

Фотографии отсутствуют

277 636 р.
Цена за м2: 5 859 р.
Октябрьский район, пр-т Мира
Аэродромная
7 мин
4 мин
3-комн. кв
55.6
м2
1 этаж из 25
376 025 р.
Цена за м2: 5 757 р.
Октябрьский район, пр-т Мира
Аэродромная
7 мин
4 мин
4-комн. кв
69.4
м2
1 этаж из 25
287 133 р.
Цена за м2: 5 859 р.
Октябрьский район, пр-т Мира
Аэродромная
7 мин
4 мин
3-комн. кв
55.2
м2
1 этаж из 25
360 009 р.
Цена за м2: 5 689 р.
Октябрьский район, ул. Брилевская
Аэродромная
16 мин
9 мин
4-комн. кв
71.4
м2
1 этаж из 25