О квартире
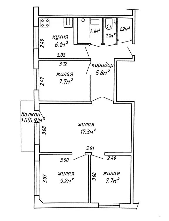
Площадь
58.2 м2
общая
42 м2
жилая
6.1 м2
кухня
Отдельных комнат
3 комнаты
Санузел
Раздельный
Балкон
Балкон
О доме
Этаж
3 из 5
Материал стен
Панельный
Год постройки
1971
Год кап. ремонта
2023
Описание
Собственник
10 дней на сайте
Условия сделки:Чистая продажа
Пожаловаться на объявление

















































