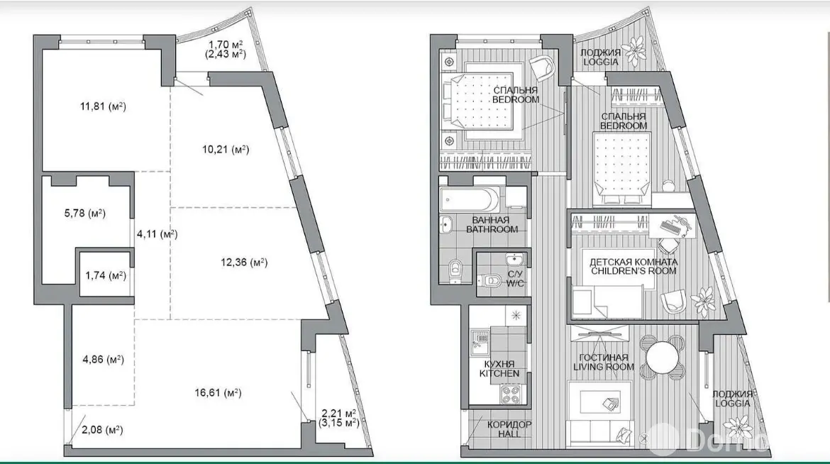
О квартире
Площадь
73.6 м2
общая
62.03 м2
жилая
Санузел
2 сан.узла
Балкон
Лоджия
Тип ремонта
Без отделки
О доме
Этаж
3 из 25
Год постройки
2024
Описание
Вариант — Агент
9 лет на сайте
Условия сделки:Чистая продажа
Показать почту
Пожаловаться на объявление
Агентство недвижимости
Вариант
УНП: 192171788 Лицензия: от 24.12.2013 № 204
Договор №: #223/2 от 24.11.2025








































