Подать БЕСПЛАТНО

Продажа 4-комнатной квартиры в Минске, пр-т Мира, д. 14

г. Минск, пр-т Мира, 14
Показать на карте
Октябрьский район
Аэродромная
6 мин
342 450 р.
Цена за м2: 5 461 р.
140 678 $
1 979 $/м2
Код объекта: 1144621
4 комнаты
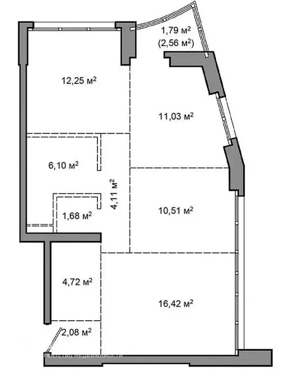
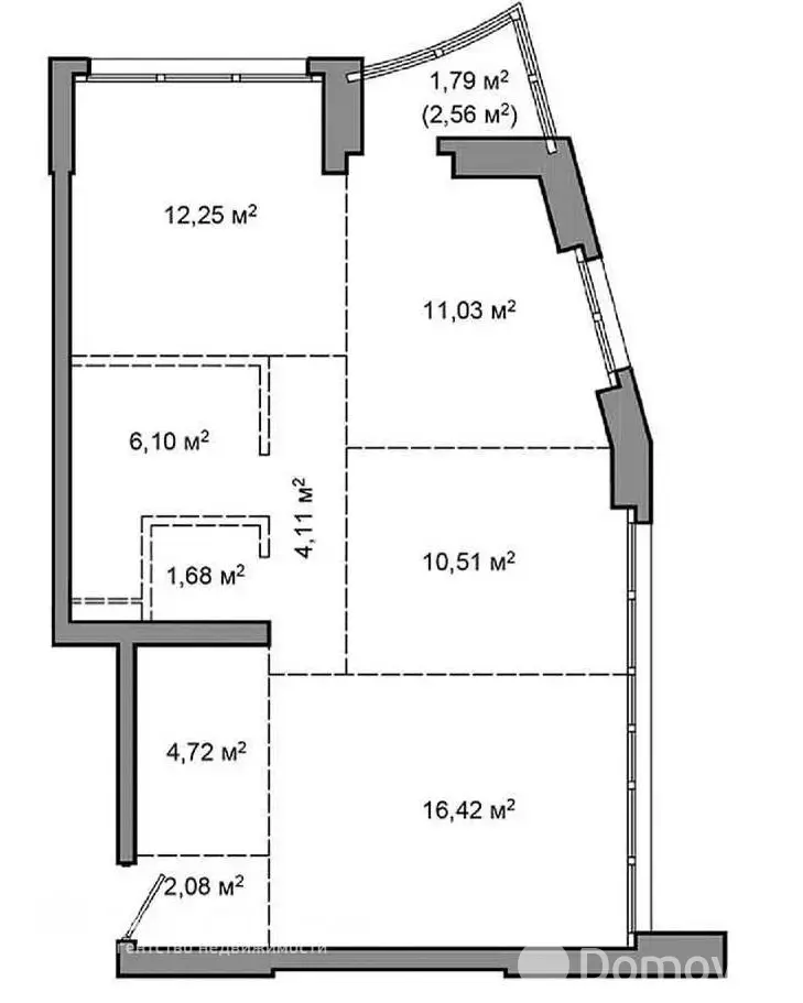
71.1 м2
1 этаж из 25
Обновлено: 13.03.2025
342 450 р.
Цена за м2: 5 461 р.
140 678 $
1 979 $/м2
Предложить свою цену

О квартире

Площадь
71.1 м2
общая
Отдельных комнат
4 комнаты
Тип ремонта
Без отделки

О доме

Этаж
1 из 25
Материал стен
Каркасно-блочный
Год постройки
2021

Описание

Квартира свободной планировки в готовом доме.

Наличие и цену уточняйте при обращении.

Выбирайте и покупайте квартиру с «Новостройцентром»!

  • Вы платите за квартиру по цене застройщика.

Также Вы можете продать свою старую квартиру с агентством недвижимости «Твоя столица» по программе «Обмен квартиры на новостройку».

Квартира на момент ввода является однокомнатной с возможностью разделения на комнаты по индивидуальному проекту будущего собственника.

Квартира находится в доме 29.4 «Глазго», квартал "Северная Европа", жилой комплекс «Минск Мир».


Узнать о квартире
Вам может быть интересно:
Комплексное сопровождение покупки квартиры в новостройке:
Бесплатно проконсультируем по объектам-новостройкам online, с выездом на объект или в любом из 6 офисов возле метро.
Забронируем выбранную новостройку на время продажи имеющейся квартиры.
Поможем в продаже вашего жилья для покупки новостройки
Специалист Ипотечного сектора поможет в подборе и привлечении кредита.
Новостройки по цене застройщика.
Экскурсии по новостройкам
Программы для покупателей новостроек
Сделайте выбор в пользу гарантий и надежности!
ОДО "Твоя столицаконсалт", УНП 190285638, лицензия №02240/129 от 06.09.06г.
Агентство
9 лет на сайте
Условия сделки:Чистая продажа
Показать почту
Пожаловаться на объявление
Агентство недвижимости
ОДО "Твоя столицаконсалт"

Местоположение

г. Минск, пр-т Мира, 14
Октябрьский район
Опубликовано: 13.03.2025

Возможно, вам будет интересно

Похожие объекты

На этой улицеВ этом домеВ этом районе
354 704 р.
Цена за м2: 5 461 р.
137 314 $
1 979 $/м2
Октябрьский район, пр-т Мира
Аэродромная
7 мин
4 мин
4-комн. кв
69.4
м2
1 этаж из 25
342 784 р.
Цена за м2: 5 461 р.
140 876 $
1 979 $/м2
Октябрьский район, пр-т Мира
Аэродромная
7 мин
4 мин
4-комн. кв
71.2
м2
1 этаж из 25
329 202 р.
Цена за м2: 5 461 р.
140 876 $
1 979 $/м2
Октябрьский район, пр-т Мира
Аэродромная
7 мин
4 мин
1-комн. кв
71.2
м2
1 этаж из 25
328 741 р.
Цена за м2: 5 461 р.
140 678 $
1 979 $/м2
Октябрьский район, пр-т Мира
Аэродромная
6 мин
1-комн. кв
71.1
м2
1 этаж из 25
329 202 р.
Цена за м2: 5 461 р.
140 876 $
1 979 $/м2
Октябрьский район, пр-т Мира
Аэродромная
6 мин
1-комн. кв
71.2
м2
1 этаж из 25
280 664 р.
Цена за м2: 5 557 р.
115 173 $
2 014 $/м2
Октябрьский район, пр-т Мира
Аэродромная
6 мин
3-комн. кв
57.2
м2
1 этаж из 25
354 704 р.
Цена за м2: 5 461 р.
137 314 $
1 979 $/м2
Октябрьский район, пр-т Мира
Аэродромная
7 мин
4 мин
4-комн. кв
69.4
м2
1 этаж из 25
336 488 р.
Цена за м2: 5 525 р.
138 129 $
2 002 $/м2
Октябрьский район, ул. Белградская
Аэродромная
8 мин
5 мин
4-комн. кв
69
м2
1 этаж из 25
342 784 р.
Цена за м2: 5 461 р.
140 876 $
1 979 $/м2
Октябрьский район, пр-т Мира
Аэродромная
7 мин
4 мин
4-комн. кв
71.2
м2
1 этаж из 25