О квартире
О доме
Описание
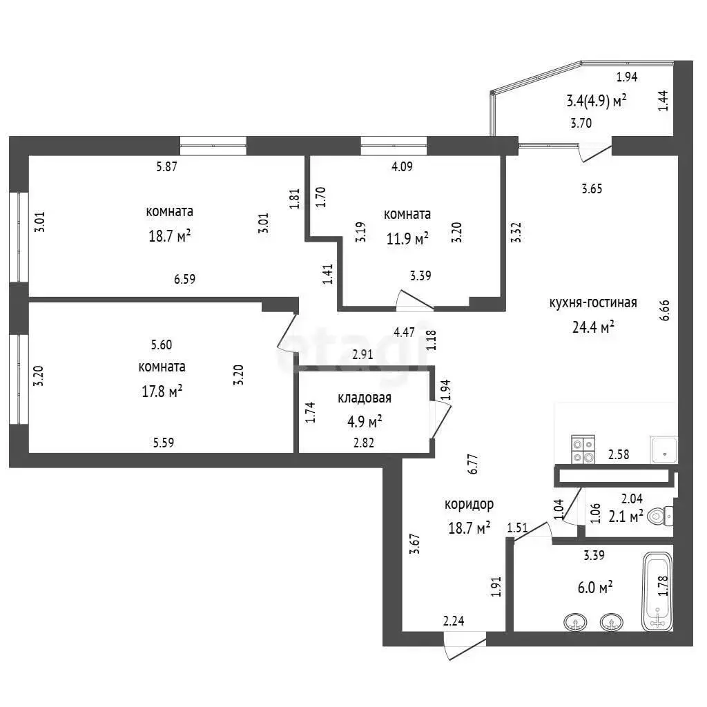
Продаётся 4-комнатная квартира в жилом комплексе комфорт-класса «Левада».
Площадь по СНБ — 107,9 м2. Планировка выстроена с акцентом на комфорт семьи: три изолированные спальни и просторная кухня-гостиная 24,4 м2 — место, где собираются близкие, проходят вечера и создаётся атмосфера дома.
Квартира расположена на 8 этаже. Восточная ориентация окон наполняет пространство мягким утренним светом и сохраняет ощущение уюта в течение дня.
Главная ценность этого предложения — грамотная база, уже реализованная в квартире:
выполнены все технически сложные и затратные этапы ремонта, что позволяет вам сосредоточиться исключительно на эстетике и финальных решениях.
— идеально выровненные и окрашенные стены
— подготовка под натяжные потолки
— продуманная электрика с проектом (сценарии света, достаточное количество розеток)
— полностью разведена сантехника
— предусмотрены подключения под всю бытовую технику
Вы не переплачиваете за чужие решения — вы создаёте интерьер, который полностью отражает ваш стиль и уровень.
Дополняют функциональность:
— гардеробная
— раздельный санузел
— застеклённая лоджия с нишей под кондиционер
— кладовое помещение 6,8 м2 на -1 уровне (с доступом на лифте)
Дом 2024 года, каркасно-блочный, с современными инженерными решениями.
— бесшумные лифты OTIS
— видеодомофон с Face ID и управлением со смартфона
— система видеонаблюдения 24/7
— закрытая территория с контролем доступа
— сквозные подъезды
— зоны хранения для велосипедов и колясок
Здесь всё продумано до мелочей — от безопасности до повседневного удобства.
Среда, которая формирует образ жизни:
ЖК «Левада» — это не просто жилой комплекс, а пространство, где архитектура, природа и инфраструктура работают на качество вашей жизни.
Закрытые дворы без машин, ландшафтный дизайн, современные детские и спортивные площадки, зоны отдыха, фитнес и локальная инфраструктура — всё внутри комплекса.
Прямой выход к набережной Свислочи открывает сценарий жизни, в котором утренние пробежки, прогулки у воды и вечерний отдых становятся частью повседневности.
В окружении — парк Победы, Дрозды, Комсомольское озеро. Это редкое сочетание близости природы и удобного доступа к центру города.
Локация и логистика: До центра — около 15 минут. В шаговой доступности транспорт, сервисы, магазины, кафе и всё необходимое для комфортной жизни.
ООО «ЭТАЖИ юнайтед»
УНП: 193673318
Договор 701/1 от 31.03.2026
Лицензия на оказание риэлтерских услуг №02240/460 МЮ РБ от 03.04.2023


















































